汽车车身覆盖件均系复杂的双曲面壳形薄钢钣件。现代汽车外形日趋流畅和饱满,艺术性变换频繁,都给车身覆盖件冲压成形带来难度。现代汽车行驶速度愈来愈高,对车身覆盖件的成形尺寸精度要求也愈来愈高,更加增加了车身覆盖件冲压成形的难度。
冲 压成形汽车车身覆盖件是采用压力机上安装大型冲模,通过冲裁展开料,拉延成形,修边冲孔,翻边整形等程序冲压而成。如何处置各道程序的成形內容,以及所采取的方式方法,是成形合格的车身覆盖件的关键。我们把这一工程称为它们的综合工序图(DL图)或工法图或加工要领图的设计。DL 图或工法图或加工要领图是大型冲模结构设计要实现的目标,这个目标出现差错, 大型冲摸结构设计再完善也多半会报废重来。
汽车车身覆盖件的成形方法是沿用了阶梯式矩盒形件拉延成形的变形理论基础,再演变发展而成的一种独特的成形方法。

a)车门內板拉延件 b)阶梯式矩盒形拉延件
(图一)拉延件的对照图
如(图一) 所示,a为车门內板,b为阶梯式矩盒形件。将车门內板附加工艺补充面之后, 就变成了一个可拉延成形的冲压件,它与矩盒形拉延件多么相似。图中A和a同属于圆筒形拉延件圆筒壁的拉延变形区;B和b也同属于直边部拉弯之弯曲变形区,都属于类同的塑性变形方法。如(图一)所示,C和c也同是阶梯形状,变形性质也是类同的。无任工艺补充面如何变换,其拉延成形的基本点並没有甚么多大的改变。
(图一)a)还说明,任何汽车车身覆盖件均可以通过增加工艺补充面的方法演变成拉延制件,而覆盖件的主体双曲面形状均是在拉延模內一次拉延成形的,只有这样才能获得准确形状的覆盖件。因而拉延成形制件是覆盖件成形的主体,也是覆盖件成形成败的关键。
满足汽车车身设计要求的覆盖件,往往不可能是理想的拉延制件,但是通过某些形状的变换之后,就成为了较理想的拉延制件了。这些变换应该在后续的工序工程中再成形回复为覆盖件,而再成形时不仅成形形状准确,还要不再使已成形好的覆盖件主体形状发生意外变形。具体的变换內容如下:
(1)关于覆盖件上的孔洞:
在拉延制件上,孔洞一般都要事先堵补起来,待拉延成形之后,在事后的工序工程中再冲出。如果事先就有孔洞存在,拉延过程中必将在孔洞处出现应力集中的现象,造成制件拉破而导致拉延成形失败。但是某些大的窗洞和门洞,又不宜都堵补起来,它还可以被拉延成形所借用。例如:
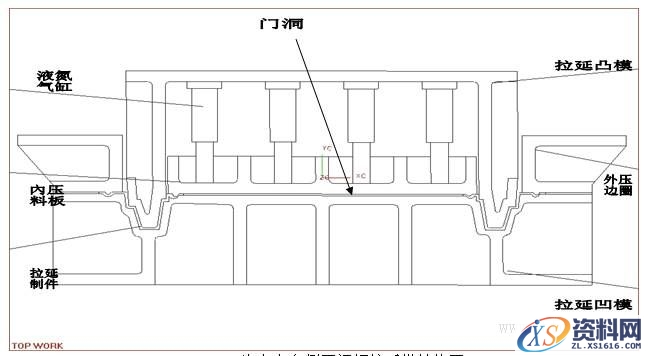
[1]门框洞:
如(图二) 所示,我们若要把门洞堵补起来,则在拉延过程中产生拉延和反拉延,在变形过程中要产生这么大的塑性流动变形量几乎是不可能的。若我们像(图二 )那样,事先
(图二) 汽车车身侧围门框拉延模结构图
开一个比门洞小一点的工艺孔,內外压紧板料进行拉延,则门框即可顺利拉延成功。这种工艺的实現还归功于摸具结构采用了液氮气缸,因为它有足够的压边力来满足成形工艺的要求。
[2]窗框洞:
如(图三) 所示,我们若要把窗洞堵补起来, 在拉延过程中同样产生塑性流动变形量过大的拉延和反拉延现象。我们只好在拉延窗包时,先冲切口,再继续拉延窗包,则门的窗框才可拉延成功。

(图三)车门外板拉延模结构图
(2)关于阻碍拉延成形的翻边:
例如(图四)的前轮翼外板,它的A处和B处都有一个倒钩边和一个垂直边。这些边是不可能在拉延制件里一次拉延成形的。我们对这些边就要作一些有利于拉延成形的变换,

(图四) 前轮翼外板拉延制件草图
像(图四)中点划线所示。这种变换要求修边之后通过翻边或斜契翻边而成形。并且不再引起前轮翼外板主曲面发生意外变形。
由于轮廓线A和轮廓线B都不可能是直线,而且多办会是曲线。如果是凸曲线,翻边的变形边会使钢板产生压缩变形;如果是凹曲线,翻边的变形边会使钢板产生拉伸变形。这些变形均是由弹性变形和塑性变形所组成,其中弹性变形将会产生残留的内应力,这种内应力会使原来拉延变形好的主曲面重又发生意外变形,丧失了主曲面的尺寸精度。因此,我们一方面设法减小这种内应力(即把一部分翻边变形高度移致拉延变形之中,减小翻边变形的翻边高度,也就是减小翻边变形量,减小了这种内应力),我们另一方面可以在拉延变形中将要发生翻边变形的曲面有意变换成波浪曲面(即它在翻边时也会减小拉伸变形量,减小了这种内应力),我们另一方面还可以通过翻边模凹模块模口高低形状的变化将集中的内应力扩散开来,都会同样得到减小内应力减小意外变形的效果。后面我们还要详细叙述这一要点。
(3)关于反拉延包的应用:
例如(图五)的侧围外板,它在a和b处有明显的台阶,如果像a那样不作任何处理,

(图五)乘用车(面包车)侧围外板拉延制件草图
阶梯处的皺纹不可避免;如果像b那样在工艺面上增设一个反拉延包,则皺纹就不会发生。
反拉延包的处置方式很多,后面还要详细阐述。
综合上述,我们把覆盖件转换成拉延制件,就是综合工序图(DL图)工程设计的重中之重。我们如何得到优良的拉延制件呢?我们将从它的塑性变形的理论基础,它沿用的变形准则,“补充工艺压料面型面”的建立与要点,和它的变形程度的校核等方面来阐述它的成形(或称变形)的设计规律。
一, 塑性变形的理论基础
覆盖件在拉延模具里拉伸时,板材包络凸模表面的每一点都应该承受双轴向拉伸应力,例如(图六)中的c点,σc就应该是双轴向拉伸应力。它由如下应力所组成:

(图六)拉延件各部位的应力应变状态图
![]()
式中:
σv—由于拉延变形而产生的法向拉伸应力;
σm—由于压边圈和凹模夹紧而产生的磨擦阻力之应力。
σv=2K∫abkgds
式中:
K—塑性常量;
a—材料与凹模口接触的一点;
b— 钣材毛坯材料边缘上的一点;
kg—通过a,b点滑移线的短程曲率;
ds—滑移线微元。
σm=q.F/s.t
式中:
q ___单位面积上的压边力;
F___压边面积;
S—凹模口周长;
t—材料厚度。
拉伸应力σc 应该大于材料的屈服强度,同时还应小于材料的强度极限,这样才能产生较好的塑性变形。若σc小于屈服强度,c点的钣材只能产生弹性变形,易于出现回弹现象;若σc大于强度极限,c点的钣材就要出现破裂。在决定拉延制件的工艺面(工艺补充形状)时,就应该使σc达到理想的塑性状态。
例如(图七)所示的车门外护板,覆盖件曲面已构成双轴向拉伸应力状态,但是如何使
(图七)车门外板拉延分析图:a—材料与凹模口接触的一点;b—钣材毛坯材料边缘上的一点;
c— 凸模起始接触毛坯材料的一点;h—材料塑性流动变形所形成的拉延深度;
J—钣材在压边圈夹紧后凸模尚未拉延时起始位置;l—压边面宽度。
凸模接触毛坯材料的各点都处于双轴向拉伸应力σc,达到良好的塑性状态呢?我们常常
采用以下一些方法:
(1)选择合适a—b间的距离尺寸,使拉延变形过程中所产生的变形阻力σv达至σc,
形成σc大于屈服强度,并且小于强度极限。它还必须是双轴向的面拉伸应力状态,所有凸模接触毛坯材料的点都应该是如此。其一:就是选择好拉延展开料,展开料的选择除了符合拉延制件构成的尺寸之外,还得考虑它是否产生了足够的变形阻力σv(或σc),使包络凸模表面的各点σc均达到屈服强度状态,从而形成永久变形。增大展开料来满足塑性变形
要求的方法是不经济的,也是不适合采用的。其二:就是选择好拉延深度h,它不仅决定了a—b间的距离尺寸,使起始拉延所产生的变形阻力σv(或σc)足够,而且还能使拉延过程中任何时刻产生的变形阻力σv(或σc)都足够。
h值沿凹模口一週是可以变化的,由此决定了工艺压料面的形状,例如(图八)所示。

a)较正确的工艺压料面 b)不适合的工艺压料面
(图八)载重车前翼子板拉延工艺分析图
图中a)所描述的h是变化的,压料面比凸模面平坦,起始拉延时凸模接触毛坯材料于c点,尔后凸模向下拉伸均是向四周扩展,钣材包络凸模上的每个点都会受到双轴向拉伸变形。因而能够获得光洁的拉延制件。图中b)所描述的h是不变化的(或是覆盖件自身的形状),此时凸模面比压料面平坦,起始拉延时凸模接触毛坯材料于c1和c2两点,尔后凸模向下拉伸,c1和c2两点间内就会形成多余的材料,成形到最后钣材必将受到压缩变形而产生折皱,达不到光洁拉延的效果。
(2)选择合适的压边力,使压边圈和凹模夹紧而产生的摩擦阻力之应力σm达至σc,形成σc大于屈服强度,并且小于强度极限。它也必须是双轴向的面拉伸应力状态,所有凸模接触毛坯材料的点都应该是如此。如果当展开料已满足拉延制件构成的尺寸时,σv产生的变形阻力还不能使σc进入屈服强度状态时,若增大σm,使σv+σm产生的变形阻力让σc达到屈服状态,也能实现良好的永久变形。人们由此常常选择双动压力机加大外滑块压力来处理的一个缘由。这样也节约了钣材消耗,因而是经济的。
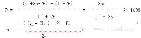
通过滑移线增量理论计算σv,并转换算出拉延深度h值是十分繁杂的。因此h值的确定有时侯常常依靠经验来决定,仍然缺乏科学性和准确性。后来有人推出了“成形度”这个概念,对快速决定h值帮助。

(图九)“成形度”分析图:I—压料面宽度;h—工艺补充面增加的拉延深度;L1—覆盖件产品截
面长度;b—拉延筋到凹模口的距离;L1—坯料变形后的尺寸;L0—为坯料变形前的尺寸。
如(图九)所示,为拉延制件某一个截面图。其中L0为坯料变形前的尺寸,L1为坯料变形后的尺寸。L1》L0,它是由钣材延伸变薄或钣材在拉延过程中塑性流动的两种变形所构成,我们把前者称为胀形度,把后者称为拉延度,如是求得平均成形度Pd如下:

式中:α—为胀形度;β—为拉延度;Pd—为平均成形度;Δ L—为钣材在该截面变形后与变形前的实际增长量。
实际上,截面上各点(或各个区域)的变形程度是不一样的,但是平均起来就是Pd。工艺补充值 b+h的大小就决定了工艺补充面的型面尺寸,也决定了覆盖件在这个截面的变形性质,它可以是純涨形的变形,也可以是純涨形变形+拉伸产生的塑性流动变形。所以Pd成形度的大小可以近视表达拉延制件变形程度的大小,由此拉延制件工艺补充面大小决定了它的成形方式和结果。

由此,拉延制件某一个截面选择了某个Pd,也就决定了这个截面的h值。并且显示了它的变形性质如(表一)。
(表一)拉延成形度说明的成形性质
Pd |
成 形 性 质 |
h |
2% | 涨形变形以弹性变形为主, 难以获得良好的固定形状。 |
|
>5% | 不能完全依靠涨形变形,还需增加工艺补充面采用一部分拉伸变形。 | 9mm |
梯度5% | 在50-100mm间距的两个截面上的成形梯度>5%时易产生皱纹。 |
|
>10%-20% | 只用涨形变形是困难的,必需使用拉伸法。 | 16.5-33mm |
30% | 如以破裂为限度,Pd平均值>30%成形属于危险。 |
|
40% | 如以破裂为限度,某处Pd最大值>40%成形属于危险。 |
|
上述理论分析,是针对着拉延制件在其拉延模凹模口的轮廓形状为直线边或大曲率边的情况下发生的变形而言,例如(图一)中的b处或c处。但是拉延制件在其拉延模凹模口的轮廓形状有时也会为小曲率边的情况,例如(图一)中的a处。在这个变形区域的变形性质更多地接近园筒形拉延件在其筒壁的变形状况,与矩盒形拉延件在其角部的变形状况差不多,例如(图一)中的A处所示,该处也是拉延制件变形量比较大或比较集中的区域,也常常是拉延制件最容易产生破裂之处,此处的拉延深度h必需仿照矩盒形拉延件的角筒形拉延系数m1,通过计算来决定,只有这样破裂才不会法生。

(图十)乘用车侧围钣拉延效果分析图
例如(图十)所示的乘用车侧围钣,在x-z平面R1》R2》R3,在y-z平面R6》R5》R4,(R为曲率半径),也就是说,中间部位的有效拉延深度h最大,直边部位的有效拉延深度h次之,角部位的有效拉延深度h最小。这样才能使起始拉延时凸模接触毛坯材料于中间部位,尔后凸模向下拉伸均是向四周扩展,最后到达角部,実现钣材包络凸模上的每个点都会受到双轴向拉伸变形。这就是光洁拉延的变形理论之一。之二是必须产生塑性变形。
(图十)所示的拉延制件,r处为凹模口轮廓小曲率边处,或称角部。r为角筒半径,R
为角部拉延后的凸缘半径,D为角部展开料的半径,h为角筒深度,W为拉延制件宽度,则拉延系数m1:
m1 = r / D
但是m1必须大于(表二)所列举的m1的许可值。否则即会产生破裂。
(表二)拉延系数m1的许可值
t为钣材厚度, 强度极限σB=28-42kg/mm2
R/r
| t/2D % | ||||
2.0-1.5 | 1.5-1 | 1-0.6 | 0.6-0.3 | 0.3-0.15 | |
1.1以下 | 0.51 | 0.53 | 0.55 | 0.57 | 0.59 |
1.3 | 0.49 | 0.51 | 0.53 | 0.54 | 0.55 |
1.5 | 0.47 | 0.49 | 0.50 | 0.51 | 0.52 |
1.8 | 0.45 | 0.46 | 0.47 | 0.48 | 0.48 |
2.0 | 0.42 | 0.43 | 0.44 | 0.45 | 0.45 |
2.2 | 0.40 | 0.41 | 0.42 | 0.42 | 0.42 |
2.5 | 0.37 | 0.38 | 0.38 | 0.38 | 0.38 |
2.8 | 0.34 | 0.35 | 0.35 | 0.35 | 0.35 |
3.0 | 0.32 | 0.33 | 0.33 | 0.33 | 0.33 |
我们也可以用(表三)来判断角筒部位的h值是否可以一次拉延成功,以及与直边(或大曲率边)的宽度的相对关系。

(表三)角筒部位的h许可值
A为小曲率边曲率比较小时能一次拉延的条件,小曲率边部转流入大曲率边部(或直边部)的钣材比较少。
B为小曲率边曲率稍大时能一次拉延的条件,小曲率边部有一部份钣材大曲率边部(或直边部)。
C为小曲率边曲率比较大时能一次拉延的条件,小曲率边部与大曲率边部(或直边部)的钣材塑性流动变形相互影响比较大。
综合以上理论分析,我们大致可以初步得到拉延制件工艺补充形状较为合适的拉延深度h值,以及相关的几何尺寸,为拉延制件的设计奠定了基础。
从(图六)所示,拉延制件在拉伸变形时,由于拉延制件形状的构成,其他部位不可能都是(图六)中c处的变形状态,其他部位的变形状态由于形状的原因而产生的变形受力情况不完全相同,也会不同于c处的变形状态。例如:凸模侧面,它承受的是单轴向拉伸应力,或以拉伸轴向应力为主另一轴向压缩应力为次(相对很小),由此形成单轴向拉伸的变形状态。又例如:压料面上,它承受的是双轴向压缩应力,由此形成双轴向压缩的变形状态。
组成车身外表面的覆盖件,其表面形状也是千姿百态,但是拉延成形时表面各处也都应是(图六)中c处的双轴向拉伸应力状态,这是我们設计其拉延制件要追求的目标。对于某些覆盖件的特定曲面也很难做到这一点,例如骄车的发动机制盖,如(图十一)所示,

a)发动机盖之一 b)发动机盖之二
(图十一)发动机盖拉延成形分析图
A处在拉延成形过程中,始终难以获得双轴向拉伸应力状态,即使在拉延成形过程中的后期,采取反拉延法也只能得到单轴向拉伸应力状态,但是也能得到光洁拉延成形的表面,此时凹模A处接触型面必须精细抛光。因此,我们必须针对拉延制件各个不同部位形状的应力状态及塑性变形理论进行分析,以便得到较理想的拉延成形结果。
车身覆盖件在拉延模中的塑性变形应该包涵以下四个方面的内容:
(1)双轴向拉伸应力状态下的延伸变形或屈服状态下的弯曲变形:
当拉延模的压边圈夹持钣材的工艺面后,凸模向下引伸钣材时,凸模表面接触钣材的起始点(如图十二中的A点之处)均应承受双轴向拉伸应力,当凸模继续向下引伸时,凸

(图十二)商用车侧顶盖拉延工艺分析图
模表面再接触钣材的各个点位也均是承受双轴向拉伸应力,直至钣材包络凸模表面的各个点位。此时拉伸应力应足以使钣材应力达到屈服点以上和强度极限以下,并且发生塑性变形,使塑性变形含量大大超过弹性变形含量,则钣材变形形状将最大限度地吻合于凸模表面的形状。
这种变形方式,应是车身外覆盖件外表面的主要变形方式,它不仅可以获得光洁的双曲
面表面,还可以获得准确的双曲面尺寸。我们在设计拉延模工艺面时,应千方百计地使车身外覆盖件的外表面变形得到这个变形效果。
在凸模向下引伸的过程中,如果钣材始终均处在双轴向拉伸应力状态下,这个效果最好。特别在变形应力对称平衡条件下,钣材不会在凸模表面产生滑移(或称串逃),凸模表面也不会产生磨损,可以长期保持凸模表面准确的曲面尺寸。如果在凸模向下引伸的过程中,有个别部位起始不是双轴向拉伸应力状态,而快要到达向下行程终了时才是双轴向拉伸应力状态,也能获得光洁的覆盖件表面,但是凸模表面会产生磨损,长时间或大批量使用模具成形时将会导致凸模表面尺寸的不准确性,是不得以而为之,或者凸模采用耐磨材料和热处理措施等,也可以定期反修凸模表面来保持凸模表面尺寸的准确性。因此,这些部位最
好是工艺补充面或是覆盖件的车身內表面处,这样就可以不必采取措施了。
(图十三) 发动机盖外扳拉延起始引伸的二种方案
T—凸模在模具中心X—Z平面的剖面轮廓线; Y1—方案1的工艺压料面凹模口轮廓线; G1—方案1的工艺压料面夹紧板材时板材在模具中心X—Z平面的剖面轮廓线; Y2—方案2的工艺压料面凹模口轮廓线; G2—方案2的工艺压料面夹紧板材时板材在模具中心X—Z平面的剖面轮廓线; C—方案1拉延时凸模起始接触板材的点; a-b—方案2拉延时凸模起始接触板材的点。
(图十三)是发动机盖外扳拉延时起始引伸的二种方案:方案1凸模向下引伸的过程中,凸模起始接触板材于c点,尔后凸模向下凸模接触板材于c点四周,凸模继续向下凸模接触板材于c点四周继续扩大,直至板材包络凸模整个表面,此时钣材不会在凸模表面产生滑移(或称串逃),是车身外覆盖件最理想的拉延效果;方案2凸模向下引伸的过程中,凸模起始接触板材于a-b二点(a-b二点按Y—Z平面对称),尔后凸模向下,a-b二点间,由于板材展开线长大于凸模表面展开线长,这时板材也要贴合凸模,此时钣材原接触凸模的a-b二点就要向外串逃,直至板材得到双轴向拉伸使板材贴合凸模表面为止,然后出现板材包络凸模整个表面,这是我们不稀望做的,也是不得以而为之的。如果a-b二点间板
材与 凸模展开线长比差过大,板材不可能贴合凸模表面,就会出现板材皱纹,得不到光洁拉延的结果,这个方法不宜采取。方案1比方案2虽然增加了拉延深度,但是变形效果是非常好的。
(2) 单轴向拉伸应力状态下的延伸变形:
当拉延模的压边圈与凹模夹持板材的工艺压料面后,凸模向下引伸板材时,凸凹模之间的板材起始是不贴合任何模具型面的,特别是凸模的侧面,如(图六)图中凸模側面所指示,此时该部位的板材均承受单轴向拉伸应力,当拉伸应力超过板材的屈服值时,即产生塑性变形。 又如(图十四)中的B处所示,若是主方向承受拉伸应力,次方向承受压缩应力,其拉伸变形量大大地大于压缩变形量,则次方向的压缩变形可以忽略不计,或者不再发生(根据流体流动方向流速差异理论),此时板材也将获得光洁拉延的变形效果。当然,这种变形结果还是不能与双轴向拉伸应力状态下的延伸变形效果相等同。我们可以把这种变形方式置于拉延制件的工艺补充面上,或者置于覆盖件的车身内表面和接合面处。

(图十四) 车门内板的拉延成型面变形状态分析图
例如(图十四)所示的车门内板,其图中指示的B面(直边处)均是承受单轴向拉伸应力,并在这个应力状态下使其应力超过板材的屈服值而达到的变形结果。
单轴向应力状态下的变形应力也应是使钣材应力达到屈服点以上和强度极限以下,只有这样才能得到稳定的曲面形状,使弹性变形视为最小。
同理:在屈服状态下进行弯曲变形也属于着这类变形,因为这也是能够产生永久性变形的一种方式。
(3)钣材的塑性流动:
(图十四)中的C处,相当于四分之一个园筒形冲压件的形状。此处的变形性质也是与园筒形冲压件的变形十分类似。园筒形冲压件的拉延变形,其筒壁形状的形成,就是因为在法蓝凸缘处的钣材承受了三轴向压缩应力的作用,当应力超过板材的屈服值时,板材产生了塑性流动变形,使法蓝凸缘处的钣材流向了筒壁处,我们把这一物理现象称之为钣材的塑性流动变形。(图十二)的C处也是如此,它们也都类似于矩盒形拉延件的角部,其变形状态都与园筒形冲压件的拉延变形相同。这种塑性变形效果也是非常好的,变形的形状和尺寸也非常稳定,几乎不存在弹性变形量。
这种变形也只能是发生在覆盖件的车身内表面和接合面处,不宜发生在覆盖件的车身外

(图十五)SUV车身侧围外板拉延制件图
有时不可避免地在覆盖件的车身外表面发生单轴向拉伸的延伸变形和钣材的塑性流动这二种变形方式,例如(图十五)所示的SUV车身侧围外板拉延制件,图中B处和C处就是如此。此时最大的缺陷就是模具对应该处的凹模园角会划伤拉延制件的板材表面,即产生冲击线,降低了拉延制件的表面光洁度。为此必须采取以下三种措施:a,提高凹模园

(图十六)载重车身后柱外板拉延制件横切剖面拉延工艺方案分析图
角表面的材质(例如坚硬的鉻鍍层)和光洁度(金相抛光),加大凹模园角半径(使凹模园角半径扩大至钣材厚度的20倍以上),以求减轻冲击线的痕迹,如(图十六)A)所示;b,增设一个阶梯,让冲击线移至工艺面上,尽量减少冲击线划伤覆盖件的外表面面积,如(图十六)B)所示;c,选择合适的拉延方向,使车身外表面处于斜面,与拉延方向的夹角最好不要超过200,这样既能得到光洁拉延又能减少冲击线。此时不要让车身内表面处于拉延的倒勾方向,否则还得采取过拉延和事后整形的措施(后面再详术)。尽管采取了以上这些办法,可能还不如人意,那么只好允许冲压件成形后对覆盖件该处外表面增加手工抛光的补救工艺。
(4)钣材的延伸变薄:
(图十四)的D处是个反拉延包,它的变形也是处于双轴向拉伸应力状态下的变形,它唯不同于前者是它的永久变形完全是依靠钣材的延伸变薄而获得。

(图十七)乘用车上侧围外护板拉延工艺分析图
(图十七)说明,依靠板材的延伸变薄来变形,就是将(图十七)中标注的L0长度范围内的板材延伸至L长度,因此这种变形会受到板材许可延伸率的限制,否则就会发生板材拉破的现象。我们可以采用如下的公式来核算:

式中:δ—表示板材的延伸率。
当覆盖件的形状不能满足这个要求时,又必须采取这种变形方式,我们可以采取如下一些措施:
[1]选择延伸率比较高的板材,例如改换使用日本的SPCEN钢板或我国宝钢的ST16钢板,等等。这些钢板的许可延伸率值比较高;
[2]在(图十七)中,L0指示的长度范围是当R=0时的状态下,如果我们加大园角半径R,则:

即可
式中: b—表示包括R在内的参入延伸变形的板材在该剖面的线长;
b0—表示两个R中心间的板材在该剖面的直线距离。
由此可以看出,加大园角半径R也可以满足这个变形要求,但是覆盖件的形状允许这个改变。
[3]如果覆盖件中有依靠板材延伸变薄来变形的反包,其中部又有一个大孔时(例如车门内护板的窗口孔),我们可以事先将覆盖件反包依靠板材延伸变薄来变形一半,然后再在冲孔废料部位冲出一个小一点的工艺孔,最后再用内孔翻边的工艺方法成型,取代不可能全靠板材延伸变薄的变形方法,例如(图十八)a所示。或者还是用这个方法,仅仅不是在冲孔废料部位冲出一个小一点的工艺孔,而是在冲孔废料部位,当反包延伸变薄成型到破裂之前,冲切出一个工艺切口,即可转为内孔翻边的工艺方法继续成型,由此减少了延伸变薄的变形量,最终获取变形的成功,例如(图十八)b所示。

(图十八)车门内板窗口反包拉延成形防止开裂的措施

a)覆盖件图
![]() |

b)第一次拉延工序图
c)第二次拉延工序图.
( 图十九)轿车车身后地板拉延成形工艺分析图
[4]如果覆盖件中有依靠板材延伸变薄来成形的反包,其反包中部又没有孔时,例如(图十九)所示轿车车身后地板,它的形状是由后座椅包和备胎包组成,二个包凸凹方向相反,每个包上都无大的孔洞。我们在制定拉延工艺方案时,若想一次拉延成形,达到(图十九)c)所示的拉延制件,备胎包就得依靠板材延伸变薄来变形,这是不能满足板材许可延伸率要求的,因此一次拉延成形不能成功。我们必需采用二次拉延成形,事先拉延成形备胎包这个反包,如(图十九)b)所示,尔后再拉延成形后座椅包形成轿车车身后地板的拉延制件,形状,最后得到良好的覆盖件,如(图十九)a)所示。这种方法应用时,要遵守一个规则,即第二次拉延成形时不许破坏第一次拉延已成形好的形状。
综合上述,覆盖件拉延成形时,板材各部位以及变形过程中,变形应力是不完全相同的,表现的应变方式也不一样,不同的应力和应变状态有不同的塑性变形能力。双轴向拉伸应力状态下获得拉伸应变的塑性变形能力最差,三轴向压缩应力状态下获得拉伸应变的塑性变形能力最好。但是,双轴向拉伸应力状态下获得光洁表面的效果最好,三轴向压缩应力状态下获得光洁表面的效果最差。我们就是根据覆盖件各个部分的不同要求,耒设计拉延制件的各个部分的不同形状,使其在符合变形理论的基础上,既經济又实惠地得到高品质的覆盖件。覆盖件的主体形状是在拉延塑性变形状态下完成的,完成的比例越高越好,留给尔后翻边整形的变形比例越少越好,因为后面的变形多办是弹塑性变形状态,事后会有弹性回复现象,常称回弹,它会造成覆盖件尺寸的过大偏差,导致拉延工序设计的失败。
二,拉延制件塑性变形应遵守的准则
把覆盖件变换成拉延制件(通过工艺设计),它认定最理想的状覆盖件曲面形状,应该是一个球形曲面形状,或称圆锅形状,如(图二十)所示。

(图二十)由拉延塑性变形理论制定的最理想的覆盖件曲面形状
但是,车身外形是一个符合潮流的艺术曲面,分解致各个覆盖件曲面形状都不太可能立即像(图二十)所示的最理想的状覆盖件曲面形状。只有通过拉延制件的形状设计,将其改造成符合以上规范化的形状,即必须遵守以下的几个准则:
1,避让冲压成形方向的倒钩现象:
(图二十一)是轿车车身后行李厢盖外板拉延制件的拉延方向选择分析图。从外形特征判定,根据以模具成形中心对称两端变形阻力相等的道理,我们好像要选择(图二十一)a)所示的冲压成形方案。但是,后行李厢盖外板上有一个牌照凹包,出现了冲压成形方向的倒钩现象,因此不可能在拉延时成形出这个牌照凹包,它的拉延方向选择是不正确的。我们必须避让冲压成形方向的倒钩现象,被迫选择(图二十一)b)所示的冲压成形方案,将后行李厢盖外板旋转一个方向,使牌照凹包顺从拉延冲压方向,才可能在拉延时成形出来。此时,为了改善外形两端变形阻力不相等的缺点,我们就要从工艺补充型面制作上耒

a)不正确的拉延方向 b)正确的拉延方向
(图二十一)轿车后行李厢盖外板避让冲压成形方向倒钩现象的实例
a—拉延凹模口轮廓线;b—拉延凸模周边轮廓线;c—工艺补充反包轮廓线;d—覆盖件修边轮廓线;e—覆盖件翻边轮廓线。
求取平衡,如(图二十一)b)所示。我们沿覆盖件四周设立一圈工艺补充凸筋,变形阻力减小的那一端(有牌照凹包的一端)凸筋高一些,另一端凸筋低一些,直到外形两端变形阻力相等。根据后行李厢盖外板曲面的特征,我们可以让四个边部凸筋低一些使用拉延方法成形,让四个角部凸筋高一些使用反拉延方法成形,但是,各处变形阻力应该是相等的(即角部总的拉延深度小于边部总的拉延深度),如(图二十一)b)所示,同时各边a轮廓线线长小于c轮廓线线长, c轮廓线线长小于e轮廓线线长,使覆盖件各个部位都是在承受双轴向拉伸应力,这样才能得到良好的光洁拉延效果,得到优良的外覆盖件。
2,最大能量的吸收:
(图二十二)是商用车后侧围外板拉延工艺分析的一个实例,从外形特征判定,根据以模具成形中心对称两端变形阻力相等的道理,我们好像要选择(图二十二)a)所示的冲压成形方案。但是,覆盖件是由主型面A和型面B所组成,(图二十二)a)所示的冲压成形方案其主型面A是一个斜面,该型面是车身外表面,要求轮廓线清晰美观,由于成形能量分流而不能获得最大的能量,因而不易得到最大能量所形成的清晰美观的轮廓线。(图二十二)b)所示的冲压成形方案,该覆盖件其主型面A是处在冲压成形方向的水平方位,属于正法向,可以百分之百吸收压力机冲压成形的最大能量,使主型面A上的轮廓线清

a)不合适的拉延方向 b)较合适的拉延方向
(图二十二)商用车后侧围外板拉延工艺分析图
晰美观,因此,(图二十二)b)所示的冲压成形方案是较合适的或是正确的。二者比较之下,当然选定(图二十二)b)所示的冲压成形方案。
钢板在模具中成形时,受力曲面能吸收压力机冲压成形的最大能量,并且使钢板成形应力到达钢板的屈服值时,它就能很好地发生永久变形(或称塑性变形)。因此,吸收压力机冲压成形的最大能量也是一条重要必须遵守的准则。
3,凸模接触拉延成形钢板起始基点不串逃:
(图二十三)是商用车后围左右内板拉延工艺设计分析图,其中a)所示的冲压成形方案虽然符合前述的一些工艺准则,但是,它在拉延成形时,在P点处(即凸模起始接触拉延成形钢板处),当凸模继续向下拉伸时板材上的P点将会沿着凸模表面相对滑动,我们称其为串逃,直至P点两端成形阻力相对平衡之后才能稳定下来,凸模再继续向下拉伸才会出现板材包络凸模表面的理想拉延现象。

a)不合适的拉延方式 b)比较合适的拉延方式
(图二十三)商用车后围左右内板拉延工艺设计分析图
串逃现象会产生两种不良的后果:A)在覆盖件表面棱线处,凸模起始接触板材产生的痕迹,串逃后仍然残留在板材上,即使覆盖件成形终了仍然还在,甚至出现表面棱线处的双印痕,成为难以消除的表面质量缺陷;B)在大量生产时,凸模表面会产生过快的磨损,丧失凸模表面的尺寸精度。
(图二十三)是商用车后围左右内板拉延工艺设计分析图,其中b)所示的冲压成形方
案是将商用车后围左右内板旋转了一个角度选定冲压方向,使凸模起始接触板材的P点两端成形阻力,在拉延成形过程从始至终都是平衡的,拉伸将出现板材包络凸模表面的理想拉延现象,因而获得优良的拉延效果。
4,以模具成形中心对称两端需遵守各瞬间板材成形流动阻力相等:
(图二十四)是越野车车门外板拉延制件分析图,该覆盖件形状是以模具成形中心两端完全不对称的,因此板材成形流动阻力对称两端如果不采取什么措施也是不可能相等的。

a)越野车车门外板覆盖件图

b)越野车车门外板拉延制件图

c) 越野车左/右车门外板拉延制件图
(图二十四)越野车车门外板拉延制件分析图
(图二十二)商用车后侧围外板也是这一类覆盖件。以模具成形中心对称两端板材成形流动阻力瞬间不相等,会出现二个缺陷:(A)(图二十四)b)中A指示的轮廓线会因串逃而产生双轮线,出现表面缺陷;(B)(图二十四)a)中倾斜的次型面会因倾角不良而产生波纹,出现表面缺陷。求得以模具成形中心对称两端需遵守各瞬间板材成形流动阻力相等有以下三个方法:
(1)增加工艺补充面:(图二十二)b)商用车后侧围外板就是在覆盖件型面B对称的一端,增加了与覆盖件型面B大致相当的工艺补充面,从而求得以模具成形中心对称两端各瞬间板材成形流动阻力相等,称之为较合适的拉延方法。
(2)旋转覆盖件至有利于拉延的冲压方向及合理布置工艺补充面:(图二十四)b)越野车车门外板拉延制件就是将覆盖件旋转了一个方向,使(图二十四)a)中标示的覆盖件主型面和次型面都处在各自有利于圆锥面光洁拉延的倾角,以及有利于形成以模具成形中心对称两端各瞬间板材成形流动阻力相等。然后选择最有利于拉延成形的工艺压料面。
1;所有标注为智造资料网zl.fbzzw.cn的内容均为本站所有,版权均属本站所有,若您需要引用、转载,必须注明来源及原文链接即可,如涉及大面积转载,请来信告知,获取《授权协议》。
2;本网站图片,文字之类版权申明,因为网站可以由注册用户自行上传图片或文字,本网站无法鉴别所上传图片或文字的知识版权,如果侵犯,请及时通知我们,本网站将在第一时间及时删除,相关侵权责任均由相应上传用户自行承担。
[complaint:内容投诉]
智造资料网打造智能制造3D图纸下载,在线视频,软件下载,在线问答综合平台 » 绘制汽车车身覆盖件冲压综合工序图的方法(图文教程)


