一.产品分析
气缸为自动化控制装置中的重要组成原件。气缸端盖产品最大外形尺寸为 61.40 mm x 46.50 mm x 32.40mm,塑件平均胶位厚度 1.33 mm,塑件材料为 ABS+PC,缩水率为 1.005,塑件质量为 12.6 克。塑件技术要求为不得存在披峰、注塑不满、流纹、气孔、翘曲变形、银纹、冷料、喷射纹、气泡等各种缺陷。

从图 1 可以看出,塑件基本造型为圆筒形,底部两个侧面分别有 3 个气嘴,其内孔直径为ø2.28mm,气体从此孔通向缸体。气缸体口部有 12 个矩形通 孔均布。模具设计的难点 6 个气嘴和 12 个矩形通孔的侧向抽芯机构设计。

二.模具设计
依据塑件的形状结构和大小尺寸,免费发送UG资料联系电话:13018639977(微信同号)QQ:2033825601,模具设计的型腔排位应为 1 出 1 或者 1 出 2,考虑到生产批量和实际的注塑机吨位,该套模具设计采用了 1 出 1 的排位。模胚规格为 BI2525,A60B35C100 推板 70,模胚材料为 S50C。模胚的精框、滑块槽和铲基槽全部采用在模胚厂加工,以减小二次加工的应力和变形。前后模仁的尺寸为 110 mmx 100 mm,在塑件长宽尺寸接近时,模仁的长宽尽可能尺寸不同,这样能够起到防呆作用,减少加工失误的发生。也有更进一步的防呆设计方法,就是将模仁和精框的四个 R 角设计成不同的尺寸,例如 3 个 R12,另外一个 R8,这样就可以完全避免装模的错误。


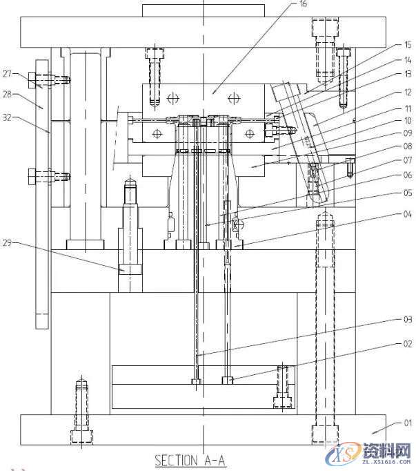
根据塑件的形状,免费发送UG资料联系电话:13018639977(微信同号)QQ:2033825601,分型面为一个平面。将 6 个气嘴的中心平面作为分型面,塑件口部朝向动模方向,2 件行位镶件 11 作为哈夫滑块,做成隧道滑块设计。行位镶件 11 见图 5,用行位固定板 14 固定在行位座 12 上。6 支行位镶针 13 同样用行位固定板 14 固定在行位座 12 上。两个滑块均由斜导柱驱动,压条采用 L 型压条,并用定位销定位。塑件的进胶方式为潜伏式进胶,在筒体壁外侧一点进胶,由于单型腔排位,所以浇口套和法兰偏心 25mm,相应地顶棍孔也偏心 25mm.


塑件的全部胶位出在动模,因此顶出力较大。模具设计中,采用了推板和顶针顶出。开模后,分型面打开,拉板 28 通过模板上的等高螺丝 27 带动推板推出,推板借助限位块 22 带动回针和整个顶针板顶出。免费发送UG资料联系电话:13018639977(微信同号)QQ:2033825601塑件在推板和顶针的共同作用下从后模镶件 04 中脱出。此时,塑件仍然卡在后模仁 09 中,推板的顶出行程被被等高螺丝 29限位而停止移动。在注塑机顶棍顶出后,顶针将塑件从后模仁 09 中顶出。整套模具采用强拉强顶的顶出方式,回针上不能套回位弹簧,顶针垫块 31 下方的螺孔为注塑机的顶棍拉杆孔。
顶出系统没有设计二次顶出系统,但是模具的顶出过程类似于二次顶出。如果不采用这样的二次顶出结构,直接采用推板和顶针顶出,由于顶出力过大,在顶针顶出的瞬间会使塑件顶白,塑件产生不良。






东莞潇洒职业培训学校开设课程有:数控编程培训、塑胶模具设计培训,冲压模具设计培训,精雕、ZBrush圆雕培训、Solidworks产品设计培训、pro/E产品设计培训、AutoformR7工艺分析培训,潇洒职业培训学校线下、线上网络学习方式,随到随学,上班学习两不误,欢迎免费试学!联系电话:13018639977
免费发送UG资料联系电话:13018639977(微信同号)QQ:2033825601
学习地址:东莞市横沥镇新城工业区兴业路121号-潇洒职业培训学校
1;所有标注为智造资料网zl.fbzzw.cn的内容均为本站所有,版权均属本站所有,若您需要引用、转载,必须注明来源及原文链接即可,如涉及大面积转载,请来信告知,获取《授权协议》。
2;本网站图片,文字之类版权申明,因为网站可以由注册用户自行上传图片或文字,本网站无法鉴别所上传图片或文字的知识版权,如果侵犯,请及时通知我们,本网站将在第一时间及时删除,相关侵权责任均由相应上传用户自行承担。
[complaint:内容投诉]
智造资料网打造智能制造3D图纸下载,在线视频,软件下载,在线问答综合平台 » 应用很广的气缸端盖塑胶模具设计案例详解

