7.5 零件图的技术要求
零件图不仅要把零件的形状和大小表达清楚,还需要对零件的材料、加工、检验、测量等提出必要的技术要求。用规定的代号、数字、文字等,表示零件在制造和检验过程中应达到的技术指标,称为技术要求。技术要求的主要内容包括:表面粗糙度、尺寸公差、形位公差、材料及热处理等。这些内容凡有指定代号的,需用代号注写在视图上,无指定代号的则用文字说明,注写在图纸的空白处。
7.5.1 表面粗糙度
1. 表面粗糙度的概念
零件的表面,无论采用哪种方法加工,都不可能绝对光滑、平整,将其置于显微镜下观察,都将呈现出不规则的高低不平的状况,高起的部分称为峰,低凹的部分称为谷,这种表面上具有较小间距的峰谷所组成的微观几何形状特性,称为表面粗糙度,如图7-34所示。这是由于加工零件时,刀具在零件表面上留下刀痕和切削时金属的塑性变形等影响,使零件表面存在着间距较小的轮廓峰谷。

图7-34 表面粗糙度
表面粗糙度反映了零件表面的加工质量,它对零件的耐磨性、耐腐蚀性、配合精度、疲劳强度及接触刚度和密封性等都有较大影响。国家标准规定了零件表面粗糙度的评定参数,应在满足零件表面功能要求的前提下,合理地选择表面粗糙度的参数值。一般来说,凡零件上有配合要求或有相对运动的表面,零件表面质量要求较高。
2. 表面粗糙度代号
表面粗糙度用代号标注在图样上,代号由符号、数字及说明文字组成。在零件的每个表面,都应按设计要求,标注表面粗糙度代号。表面粗糙度符号有三种,见表7-2。
表7-2 表面粗糙度符号

3. 表面粗糙度的高度评定参数
评定表面粗糙度的高度参数有:轮廓的算术平均偏差Ra、轮廓的最大高度Rz等。这里只介绍最常用的轮廓算术平均偏差Ra。其他内容可参阅国家标准。
轮廓的算术平均偏差Ra是指在取样长度l内,轮廓偏距y绝对值的算术平均值,如图7-35。用公式可表示为:

Ra=![]()
∣y(x)∣dx 或 Ra≈![]()
∣yi∣
图7-35 轮廓算术平均偏差
表面粗糙度的高度评定参数Ra的数值见表7-3。
表7-3 表面粗糙度Ra数值 μm
第1系列 第2系列 | 第1系列 第2系列 | 第1系列 第2系列 | 第1系列 第2系列 |
0.008 0.010 0.12 0.016 0.020 0.025 0.032 0.40 0.50 0.063 0.080 0.100 |
0.125 0.160 0.20 0.25 0.32 0.40 0.50 0.63 0.80 1.00 |
1.258 1.60 2.0 2.5 3.2 4.0 5.0 6.3 8.0 10.0 |
12.5 16.0 20 25 32 40 50 63 80 100 |
零件的表面粗糙度高度评定参数轮廓算术平均偏差Ra的数值越大,表面越粗糙,零件表面质量越低,加工成本就越低;轮廓算术平均偏差Ra的数值越小,表面越光滑,零件表面质量越高,加工成本就越高。因此,在满足零件使用要求的前提下,应合理选用表面粗糙度参数。
4. 表面粗糙度代号在图样上的标注
表面粗糙度符号的画法如图7-36所示。对于Ra、Rz粗糙度高度参数,尤其选用Ra数值的为最多,标注Ra数值时省略Ra字样,见表7-4。

图7-36 表面粗糙度符号的画法
表7-4 表面粗糙度代号

在图样上标注表面粗糙度时,应注意以下几点:
(1) 同一零件图中,每个表面一般只标注一次表面粗糙度代号。
(2) 表面粗糙度代号的尖端必须从材料外指向材料表面。
(3) 表面粗糙度代号应标注在可见轮廓线、尺寸线、尺寸界线或引出线上,并且尽量标注在有关范围附近,如图7-3所示。


图7-37 表面粗糙度的标注示例 图7-38 表面粗糙度的标注
(4) 当表面粗糙度代号中,仅有高度参数值一项内容时,表面粗糙度代号和数字的方向应按图7-38规则标注。
(5) 当零件表面有相同的表面粗糙度要求时,可将表面粗糙度代号统一标注在图样的右上角,如图7-39所示。


图7-39 相同表面的表面粗糙度标注 图7-40 不连续的同一表面、连续表面的标柱
当零件各表面的表面粗糙度要求不同时,可将使用最多的一种表面粗糙度代号统一标注在图样的右上角,并在代号的前面加上“其余”二字,如图7-37所示。
零件上连续表面、重复要素(如孔、齿、槽等)的表面和用细实线连接不连续的同一表面,其表面粗糙度代号只注一次,如图7-40所示。


图7-41 同一表面不同要求的注法 图7-42 螺纹、齿轮、键槽、倒角、圆角的注法
同一表面上有不同的表面粗糙度要求时,应用细实线画出其分界线,并注出相应的表面粗糙度代号和尺寸,如图7-41所示。
齿轮、螺纹、键槽等的工作表面和倒角、圆角的表面粗糙度代号可以简化标注,如图7-42所示。
5. 表面粗糙度的选用
表面粗糙度参数值的选用,应该既要满足零件表面的功能要求,又要考虑经济合理性。具体选用时,可参照已有的类似零件图,用类比法确定。
选用时要注意以下问题:
① 在满足功用的前提下,尽量选用较大的表面粗糙度数值,以降低生产成本。
② 一般情况下,零件的接触表面比非接触表面的粗糙度参数值要小。
③ 受循环载荷的表面极易引起应力集中的表面,表面粗糙度参数值要小。
④ 配合性质相同,零件尺寸小的比尺寸大的表面粗糙度参数值要小;同一公差等级,小尺寸比大尺寸、轴比孔的表面粗糙度参数值要小。
⑤ 运动速度高、单位压力大的磨擦表面比运动速度低,单位压力小的磨擦表面的粗糙度参数值小。
⑥ 要求密封性、耐腐蚀的表面其粗糙度参数值要小。
表7-5列举了表面粗糙度参数Ra值与加工方法的关系及其应用实例,可供选用时参考。
表7-5 表面粗糙度参数Ra值应用举例
Ra | 表面特征 | 表面形状 | 获得表面粗糙度的方法 | 应用举例 |
100 | 粗糙 | 明显可见的刀痕 | 锯断、粗车、粗铣、粗刨、钻孔及用粗纹锉刀、粗砂轮等加工 | 管的端部断面和其他半成品的表面、带轮法兰盘的结合面、轴的非接触端面,倒角,铆钉孔等。 |
50 | 可见的刀痕 | |||
25 | 微见的刀痕 | |||
12.5 | 半光 | 可见加工痕迹 | 拉制(钢丝)、精车、精铣、粗铰、粗铰埋头孔、粗剥刀加工、刮研 | 支架、箱体、离合器、带轮螺钉孔、轴或孔的退刀槽、量板、套筒等非配合面、齿轮非工作面、主轴的非接触外表面,IT8-ITll级公差的结合面。 |
6.3 | 微见加工痕迹 | |||
3.2 | 看不见加工痕迹 | |||
1.6 | 光 | 可辨加工痕迹的方向 | 精磨、金刚石车刀的精车、精铰、拉制、剥刀加工 | 轴承的重要表面、齿轮轮齿的表面、普通车床导轨面、滚动轴承相配合的表面、机床导轨面、发动机曲轴、凸轮轴的工作面、活塞外表面等IT6-IT8级公差的结合面。 |
0.8 | 微辨加工痕迹的方向 | |||
0.4 | 不可辨加工痕迹的方向 | |||
0.2 | 最光 | 暗光泽面 | 研磨加工 | 活塞销和涨圈的表面、分气凸轮、曲柄轴的轴颈、气门及气门座的支持表面、发动机气缸内表面、仪器导轨表面、液压传动件工作面、滚动轴承的滚道、滚动体表面、仪器的测量表面、量块的测量面等。 |
0.1 | 亮光泽面 | |||
0.05 | 镜状光泽面 | |||
0.025 | 雾状镜面 | |||
0.012 | 镜面 |
7.5.2 极限与配合
7.5.2.1极限与配合基本概念
1.零件的互换性
现代化的大规模生产,要求零件具有互换性。即在同一规格的一批零件中任取一件,在装配时不经加工与修配,就能顺利地将其装配到机器上,并能够保证机器的使用要求。零件在制造过程中,由于加工和测量等因素引起的误差,使得零件的尺寸不可能绝对准确,为了使零件具有互换性,就必须限制零件尺寸的误差范围,并且在制造上又是经济合理的。零件具有互换性,不但给装配、修理机器带来方便,还可用专用设备生产,提高产品数量和质量,同时降低产品的成本。
2. 尺寸公差
制造零件时,为了使零件具有互换性,就必须对零件的尺寸规定一个允许的变动范围。为此,国家制定了极限尺寸制度,即零件制成后的实际尺寸,限制在最大极限尺寸和最小极限尺寸的范围内。这种允许尺寸的变动量,称为尺寸公差。
下面简要介绍关于尺寸公差中的一些名词,如图7-43所示。
(a) 尺寸公差 (b) 公差带图
图7-43 尺寸公差名词
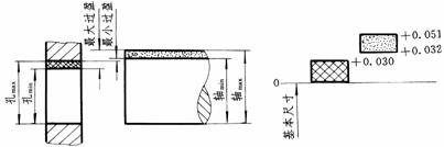
(1) 基本尺寸:根据零件强度、结构和工艺性要求,设计给定的尺寸,如Φ50。
(2) 实际尺寸:通过测量所得到的尺寸。
(3) 极限尺寸:允许尺寸变化的两个界限值。它以基本尺寸为基数来确定。两个界限值中较大的一个称为最大极限尺寸;较小的一个称为最小极限尺寸。如最大极限尺寸为Φ50.007,最小极限尺寸为Φ47.982。
(4) 尺寸偏差(简称偏差):极限尺寸减去基本尺寸的代数差,分别为上偏差和下偏差。孔的上偏差用ES,下偏差用EI表示;轴的上偏差用es,下偏差用ei表示。
上偏差=最大极限尺寸-基本尺寸
下偏差=最小极限尺寸-基本尺寸
ES=50.007-50=+0.007
EI=47.982-50=-0.018
上、下偏差统称极限偏差。上、下偏差可以是正值、负值或零。
(5) 尺寸公差(简称公差):允许尺寸的变动量。它等于最大极限尺寸与最小极限尺寸之代数差的绝对值。也等于上偏差与下偏差之代数差的绝对值。
尺寸公差=最大极限尺寸-最小极限尺寸=上偏差-下偏差
公差=50.007-47.982=0.025=0.007-(-0.018)=0.025
因为最大极限尺寸总是大于最小极限尺寸,所以尺寸公差一定为正值。
(6) 零线:在公差带图中,确定偏差值的基准线,也称零偏差线。通常以零线表示基本尺寸。
(7) 尺寸公差带(简称公差带):在公差带图解中由代表最大极限尺寸和最小极限尺寸的两条直线所限定的一个区域。为了便于分析,一般将尺寸公差与基本尺寸的关系,按放大比例画成简图,称为公差带图,如图7-43(b)。
2. 标准公差和基本偏差
公差带是由标准公差和基本偏差组成的。标准公差确定公差带的大小,基本偏差确定公差带的位置。
(1) 标准公差:国家标准所列的,用以确定公差带大小的任一公差。标准公差的数值由基本尺寸和公差等级来决定。公差等级确定尺寸的精确程度,分为20级,“IT”表示标准公差,公差等级的代号用阿拉伯数字表示。即IT01,IT0,IT1,…,IT18。其尺寸精确程度从IT01到IT18依次降低。对于一定的基本尺寸,公差等级越高,标准公差值越小,尺寸的精确程度越高。基本尺寸和公差等级相同的孔与轴,它们的标准公差值相等。标准公差的具体数值见书末的附表。
(2) 基本偏差:基本偏差是指在标准的极限与配合中,确定公差带相对零线位置的上偏差或下偏差,一般指靠近零线的那个偏差。当公差带在零线的上方时,基本偏差为下偏差;反之,则为上偏差。基本偏差共有28个,用拉丁字母表示,大写字母代表孔,小写字母代表轴,如图7-44所示。
图7-44 基本偏差系列示意图
从基本偏差系列图中可以看出:孔的基本偏差A~H和轴的基本偏差k~zc为下偏差;孔的基本偏差K~ZC和轴的基本偏差a~h为上偏差,JS和js的公差带对称分布于零线两边,孔和轴的上、下偏差分别都是+IT/2、-IT/2。基本偏差系列图只表示公差带的位置,不表示公差的大小,因此,公差带一端是开口的,开口的另一端由标准公差限定,根据尺寸公差的定义有以下的计算式。
孔的另一偏差:
ES=EI+IT 或 EI=ES-IT
轴的另一偏差:
ei=es-IT或 es=ei+IT
(3) 孔、轴的公差带代号
对于某一基本尺寸,取标准规定的一种基本偏差,配上一级标准公差,就可以形成一种公差带。我们用基本偏差代号的字母和标准公差等级代号的数字即可组成一种公差带代号,如:H9、h7、F8、f7等。
例如Ø50H8的含义是:

此公差带的全称是:基本尺寸为Ø50,公差等级为8级,基本偏差为H的孔的公差带。
又如Ø50f7的含义是:

3. 配合
基本尺寸相同的、相互结合的孔和轴公差带之间的关系,称为配合。配合分为三类:即间隙配合、过盈配合和过渡配合。
(1) 间隙配合:孔的公差带完全在轴的公差带之上,孔比轴大,任取其中一对轴和孔相配都成为具有间隙的配合(包括最小间隙为零),如图7-45所示。当互相配合的两个零件需相对运动或要求拆卸很方便时,则需采用间隙配合。

图7-45间隙配合
(2) 过盈配合:孔的公差带完全在轴的公差带之下,孔比轴小,任取其中一对轴和孔相配都成为具有过盈的配合(包括最小过盈为零),如图7-46所示。当互相配合的两个零件需牢固连接、保证相对静止或传递动力时,则需采用过盈配合。

图7-46 过盈配合
(3) 过渡配合:孔和轴的公差带相互交叠,孔可能比轴大,也可能比轴小,任取其中一对孔和轴相配合,可能具有间隙,也可能具有过盈的配合,如图7-47所示。过渡配合常用于不允许有相对运动,轴孔对中要求高,但又需拆卸的两个零件间的配合。

7.47 过渡配合
4. 配合制度
在制造相互配合的零件时,使其中一种零件作为基准件,它的基本偏差一定,通过改变另一种非基准件的基本偏差来获得各种不同性质配合的制度称为基准制。根据生产实际的需要,国家标准规定了基孔制和基轴制两种基准制度。
(1) 基孔制配合:基本偏差为一定的孔的公差带,与不同基本偏差的轴的公差带构成各种配合的一种制度称为基孔制。这种制度在同一基本尺寸的配合中,是将孔的公差带位置固定,通过变动轴的公差带位置,得到各种不同的配合,如图7-48所示。
基孔制的孔称为基准孔。国标规定基准孔的下偏差为零,“H”为基准孔的基本偏差。
一般情况下应优先选用基孔制。

图7-48 基孔制
(2) 基轴制配合:基本偏差为一定的轴的公差带与不同基本偏差的孔的公差带构成各种配合的一种制度称为基轴制。这种制度在同一基本尺寸的配合中,是将轴的公差带位置固定,通过变动孔的公差带位置,得到各种不同的配合,如图7-49所示。
基轴制的轴称为基准轴。国家标准规定基准轴的上偏差为零,“h”为基轴制的基本偏差。

图7-49 基轴制
从基本偏差系列,如图7-44中可以看出:
在基孔制中,基准孔H与轴配合,a~h(共11种)用于间隙配合;j~n(共5种)主要用于过渡配合;p~zc(共12种)主要用于过盈配合。
在基轴制中,基准轴h与孔配合,A~H(共11种)用于间隙配合;J~N(共5种)主要用于过渡配合;P~ZC(共12种)主要用于过盈配合。
5. 优先配合和常用配合
国家标准根据机械工业产品生产使用的需要,考虑到定值刀具、量具的统一,规定了一般用途孔公差带105种,轴公差带119种以及优先选用的孔、轴公差带。国标还规定轴、孔公差带中组合成基孔制常用配合59种,优先配合13种;基轴制常用配合47种,优先配合13种。表7-6为基孔制常用、优先配合系列,表7-7为基轴制常用、优先配合系列。在设计中,应根据配合特性和使用功能,尽量选用优先和常用配合。
表7-6 基孔制常用、优先配合
基准孔 | 轴 | ||||||||||||||||||||||
a | b | c | d | e | f | g | h | js | k | m | n | p | r | s | t | u | v | x | y | z | |||
| 间隙配合 | 过渡配合 | 过盈配合 | ||||||||||||||||||||
H6 |
|
|
|
|
|
|
|
|
|
|
|
|
|
|
|
|
|
|
|
|
| ||
H7 |
|
|
|
|
|
|
|
|
|
|
|
|
|
|
|
|
|
|
|
|
| ||
H8 |
|
|
|
|
|
|
|
|
|
|
|
|
|
|
|
|
|
|
|
|
| ||
|
|
|
|
|
|
|
|
|
|
|
|
|
|
|
|
|
|
|
|
| |||
H9 |
|
|
|
|
|
|
|
|
|
|
|
|
|
|
|
|
|
|
|
|
| ||
H10 |
|
|
|
|
|
|
|
|
|
|
|
|
|
|
|
|
|
|
|
|
| ||
H11 |
|
|
|
|
|
|
|
|
|
|
|
|
|
|
|
|
|
|
|
|
| ||
H12 |
|
|
|
|
|
|
|
|
|
|
|
|
|
|
|
|
|
|
|
|
| ||
|
|
|
|
|
|
|
|
|
|
|
|
|
|
|
|
|
|
|
|
|
|
|
|
注: 1.
、
在≤3mm和
≤100mm时为过渡配合。
2. 黑框中的配合符号为优先配合。
表7-7 基轴制常用、优先配合
基准轴 | 孔 | |||||||||||||||||||||
A | B | C | D | E | F | G | H | JS | K | M | N | P | R | S | T | U | V | X | Y | Z | ||
| 间隙配合 | 过渡配合 | 过盈配合 | |||||||||||||||||||
h5 |
|
|
|
|
|
|
|
|
|
|
|
|
|
|
|
|
|
|
|
|
| |
h6 |
|
|
|
|
|
|
|
|
|
|
|
|
|
|
|
|
|
|
|
|
| |
h7 |
|
|
|
|
|
|
|
|
|
|
|
|
|
|
|
|
|
|
|
|
| |
h8 |
|
|
|
|
|
|
|
|
|
|
|
|
|
|
|
|
|
|
|
|
| |
h9 |
|
| & | |||||||||||||||||||
![]() 鲜花 | ![]() 握手 | ![]() 雷人 | ![]() 路过 | ![]() 鸡蛋 |
最新评论...
- 日
- 周
- 月
- 15019229965
-

扫一扫,关注公众号
-
-

关注公众号,每天免费获取下载资源 关注我们,每天可以享受免费下载,扫描左边二维码,即可关注,你还在等什么? |


1;所有标注为智造资料网zl.fbzzw.cn的内容均为本站所有,版权均属本站所有,若您需要引用、转载,必须注明来源及原文链接即可,如涉及大面积转载,请来信告知,获取《授权协议》。
2;本网站图片,文字之类版权申明,因为网站可以由注册用户自行上传图片或文字,本网站无法鉴别所上传图片或文字的知识版权,如果侵犯,请及时通知我们,本网站将在第一时间及时删除,相关侵权责任均由相应上传用户自行承担。
[complaint:内容投诉]
智造资料网打造智能制造3D图纸下载,在线视频,软件下载,在线问答综合平台 » 机械制图教程-(7.5)零件图的技术要求(图文教程)












说点什么...