机械密封的选用
使用条件 | 设计注意事项 | 应用实例 | |
易 腐 蚀 介 质 | 盐酸、铬酸、硫酸、醋酸等 | 1)选用耐腐蚀材料; 2)采用外装式机械密封,减少与腐蚀性介质接触的零件; 3)如采用内装式密封,弹簧应加保护层; 4)危险大的介质选用双端面密封; 5)设置漏液回收或稀释装置 |
耐酸机械密封 1—静环 2—动环 3—弹簧 4—波纹管 说明: 1)此结构为单弹簧聚四氟乙烯波纹管,外装式; 2)摩擦副由氧化铝陶瓷与填充玻璃纤维聚四氟乙烯组对,填充聚四氟乙烯耐磨端与纯聚四氟乙烯波纹管制成一体; 3)弹簧可采用普通不锈钢制造 |
高 粘 度 介 质 | 润滑脂、硫酸、齿轮油、汽缸油、苯乙烯 | 1)若采用旋转式密封,当介质黏度为0.7~1.6Pa·s时,需加强传动销和弹簧的设计;当介质黏度大于1.6Pa·s时,需要加强润滑,如采用单端面密封,通入外供冲洗液,若采用双端面密封,通入隔离流体; 2)采用硬对硬摩擦副材料组合; 3)采用静止式双端面密封; 4)考虑保温结构,保证介质黏度不因温度降低而增高 | 1)若采用旋转式密封,当介质粘度为700~1 600mPa·s时,需加大传动销和弹簧的设计,用以抵抗因粘度增加而增加的剪力,大于1 600mPa·s时,还需要加强润滑,如单端面密封通入外供冲洗液,或双端面密封通入隔离流体 2)采用静止式双端面密封 3)采用硬对硬摩擦副材料组合 4)考虑保温结构,保证介质粘度不因温度降低而增高 |
高 温 | 使用温度超过150℃ | 1)选用耐高温、具有良好的导热性、低摩擦系数和热膨胀系数的材料; 2)及时把密封腔热量传导出去,如采用冲洗,冷却措施; 3)有装配关系的地方,选用热膨胀系数相近的材料 |
热油泵用高温机械密封 1—内冲洗节流套 2—轴套 3—动环 4—金属波纹管静环组件 5—导流套 6—填料密封 说明: 1)采用冲洗、冷却结构以提高冷却效果,设置导流套增加冷却面积; 2)采用金属波纹管结构; 3)采用低膨胀合金镶装石墨静环; 4)最高使用温度为256℃ |
低 温 | 使用温度为-20℃以下 | 1)为防止端面液膜汽化,可采取强制冷却措施; 2)端面压强不宜过小; 3)适当提高密封大气侧的压力; 4)在大气侧注入干燥惰性气体,防止水汽进入密封引起结冰 |
液氧泵低温机械密封 1—动环 2—静环 3—波纹管 4—弹簧 5—导流套 说明: 1)该结构适用工作温度为-196℃; 2)采用静止式金属波纹管单端面结构; 3)摩擦副材料组对为青铜对石墨; 4)引入干燥氮气保护,稀释泄漏的氧气,吹扫密封件周围的空气,避免空气中的水汽在密封件与轴上冻结 |
含 杂 质 介 质 | 粉尘,晶粒,纤维等 | 1)结构设计上应采用防止杂质颗粒堵塞结构。如外装式结构;采用内装式密封时,应将弹簧与介质隔离; 2)一般可采用单端面密封,但当介质浓度高,杂质含量大时,须用双端面机械密封; 3)摩擦副选用硬对硬材料; 4)采用冲洗方式保持端面周围环境干净; 5)宜采用大弹簧结构 |
耐磨机械密封 1—静环 2—动环 3—波纹管 4—弹簧 说明: 1)此结构为双端面,橡胶波纹管结构; 2)端面材料为碳化硅对碳化硅 |
高 压 | 工作压力超过3 MPa | 1)端面受力合理,尽量减小变形; 2)采用高强度材质; 3)采用平衡式密封,减小载荷系数K; 4)选用可靠的传动方式,如键、销等; 5)加强冷却和润滑 |
高压中速机械密封 1—弹簧 2—动环 3—静环 4—耐磨涂层 5—防挤出挡圈 说明: 1)此结构用于压差7MPa,速度不大于15m/s的场合; 2)静环由碳石墨制成,动环使用高弹性模量的硬质合金嵌件,且基环有足够的截面厚度,因而可适用于高压变工况的情况 |
高 速 | 端面速度超过25 m/s | 1)加强对端面的润滑和冷却; 2)选用静止式密封,尽量减少旋转零件; 3)动环应与轴线对称且保持动平衡; 4)选用高(pcv)p值的端面材料;尽量选取较小的端面压力; 5)采用平衡式密封 |
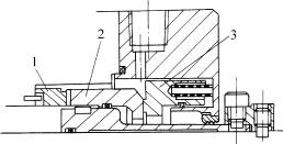
高速机械密封 1—止推轴承 2—动环 3—静环 说明: 1)该结构适用于大轴径及转速高达10 000 r/min的情况; 2)动环由止推轴承定位,由键传递转矩; 3)动环的浮动性好 |
1;所有标注为智造资料网zl.fbzzw.cn的内容均为本站所有,版权均属本站所有,若您需要引用、转载,必须注明来源及原文链接即可,如涉及大面积转载,请来信告知,获取《授权协议》。
2;本网站图片,文字之类版权申明,因为网站可以由注册用户自行上传图片或文字,本网站无法鉴别所上传图片或文字的知识版权,如果侵犯,请及时通知我们,本网站将在第一时间及时删除,相关侵权责任均由相应上传用户自行承担。
[complaint:内容投诉]
智造资料网打造智能制造3D图纸下载,在线视频,软件下载,在线问答综合平台 » 机械密封的选用(图文教程)







