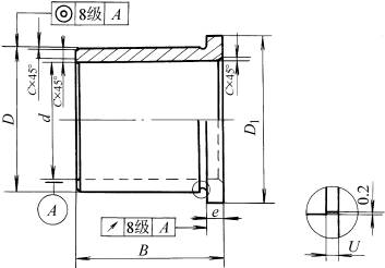
铜合金带挡边整体轴套的尺寸

d | D | D1 | e | C | U | B |
| d | D | D1 | e | C | U | B |
6 | 12 | 14 | 3 | 0.3 | 1 | 6,8,10 |
| 60 | 75 | 83 | 7.5 | 0.8 | 2 | 40,45,50,55,60,65,70,75,80 |
8 | 14 | 18 | 6,8,10,12 | 65 | 80 | 88 | 1.0 | 45,50,55,60,65,70,75,80 | ||||||
10 | 16 | 20 | 6,8,10,12,16 | 70 | 85 | 95 | 45,50,55,60,65,70,75,80,90 | |||||||
12 | 18 | 22 | 0.5 | 8,10,12,16,20 | 75 | 90 | 100 | 3 | 50,55,60,65,70,75,80,90 | |||||
14 | 20 | 25 | 10,12,16,20,25 | 80 | 95 | 105 | 55,60,65,70,75,80,90,100 | |||||||
16 | 22 | 28 | 1.5 | 12,16,20,25 | 85 | 100 | 110 | 55,60,65,70,75,80,90,100 | ||||||
18 | 24 | 30 | 12,16,20,25,30 | 90 | 110 | 120 | 10 | 55,60,65,70,75,80,90,100,120 | ||||||
20 | 26 | 32 | 16,20,25,30,35 | 95 | 115 | 125 | 60,65,70,75,80,90,100,120 | |||||||
22 | 28 | 34 | 16,20,25,30,35 | 100 | 120 | 130 | 75,80,90,100,120 | |||||||
25 | 32 | 38 | 4 | 20,25,30,35,40 | 105 | 125 | 135 | 75,80,90,100,120 | ||||||
28 | 36 | 42 | 20,25,30,35,40,45 | 110 | 130 | 140 | 80,90,100,120 | |||||||
30 | 38 | 44 | 2 | 20,25,30,35,40,45 | 120 | 140 | 150 | 100,120,150 | ||||||
32 | 40 | 46 | 0.8 | 20,25,30,35,40,45 | 130 | 150 | 160 | 2.0 | 4 | 100,120,150 | ||||
35 | 45 | 50 | 5 | 25,30,35,40,45,50 | 140 | 160 | 170 | 100,120,150,180 | ||||||
38 | 48 | 54 | 25,30,35,40,45,50,55,60 | 150 | 170 | 180 | 120,150,180 | |||||||
40 | 50 | 58 | 25,30,35,40,45,50,55,60 | 160 | 185 | 200 | 12.5 | 120,150,180 | ||||||
42 | 52 | 60 | 25,30,35,40,45,50,55,60,65 | 170 | 195 | 210 | 120,150,180,200 | |||||||
45 | 55 | 63 | 30,35,40,45,50,55,60,65 | 180 | 210 | 220 | 15 | 150,180,200,250 | ||||||
48 | 58 | 66 | 35,40,45,50,55,60,65 | 190 | 220 | 230 | 150,180,200,250 | |||||||
50 | 60 | 68 | 35,40,45,50,55,60,65 | 200 | 230 | 240 | 180,200,250 | |||||||
55 | 65 | 73 | 35,40,45,50,55,60,65,70 |
|
|
|
|
1;所有标注为智造资料网zl.fbzzw.cn的内容均为本站所有,版权均属本站所有,若您需要引用、转载,必须注明来源及原文链接即可,如涉及大面积转载,请来信告知,获取《授权协议》。
2;本网站图片,文字之类版权申明,因为网站可以由注册用户自行上传图片或文字,本网站无法鉴别所上传图片或文字的知识版权,如果侵犯,请及时通知我们,本网站将在第一时间及时删除,相关侵权责任均由相应上传用户自行承担。
[complaint:内容投诉]
智造资料网打造智能制造3D图纸下载,在线视频,软件下载,在线问答综合平台 » 铜合金带挡边整体轴套的尺寸(图文教程)

