
1.收到产品图,先进行头脑风暴。

2.制作开模信息,给产品定位。

3.制作模具DFM报告,产品的认可。

4.开始模具设计:前后模仁进行分模,如果模具紧急的情况下,可以先进行订购模仁材料,因为订料时间也要2~3天,等料回来的时候模仁加工图基本上可以设计完成。

5.前后模镶件制作

6.产品结构的设计:斜顶的设计,按照公司标准进行设计。

7.产品结构的设计:滑块的设计,按照公司标准进行设计。

8.第一步进行结构检查合理性,进行下一步动作的设计。

9.结合产品结构以及模仁大小,来确认模架大小,进行模架设计。

10.模架上面的水路系统设计

11.产品顶出系统的设计

12.模仁上细节优化,模仁上做避空位

13.模仁上追加排气槽

14.模架上的细节优化并按照检查清单进行检查。

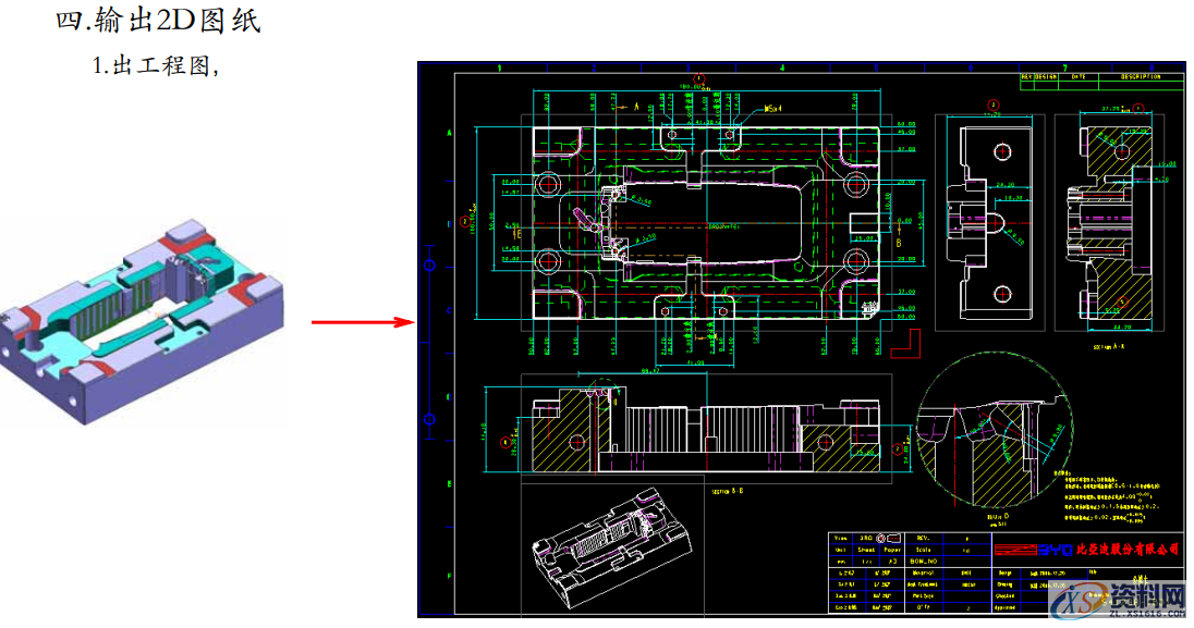
15.进行出2D加工图纸。

16.制作模具DFM报告

17.再进行整体检查。

18.模具资料整理以及技术难点总结。

我们是知识搬运工,我们是技术传播者!
东莞潇洒职业培训学校开设课程有:CNC数控编程、塑胶模具设计,压铸模具设计、冲压模具设计, Solidworks/pro/E产品设计、AutoformR7工艺分析,非标自动化设计、PLC编程、文职、电商、平面设计、新媒体等培训课程,潇洒职业培训学校线下、线上、随到随学等学习方式,上班学习两不误,欢迎预约免费试学!
联系电话:18029183455(微信同号)QQ:2799669782
线上免费试学: xsmj.ke.qq.com
免责声明:
1;所有标注为智造资料网zl.fbzzw.cn的内容均为本站所有,版权均属本站所有,若您需要引用、转载,必须注明来源及原文链接即可,如涉及大面积转载,请来信告知,获取《授权协议》。
2;本网站图片,文字之类版权申明,因为网站可以由注册用户自行上传图片或文字,本网站无法鉴别所上传图片或文字的知识版权,如果侵犯,请及时通知我们,本网站将在第一时间及时删除,相关侵权责任均由相应上传用户自行承担。
[complaint:内容投诉]
智造资料网打造智能制造3D图纸下载,在线视频,软件下载,在线问答综合平台 » BYD模具设计作业流程:18个步骤,让设计变得清晰明了
1;所有标注为智造资料网zl.fbzzw.cn的内容均为本站所有,版权均属本站所有,若您需要引用、转载,必须注明来源及原文链接即可,如涉及大面积转载,请来信告知,获取《授权协议》。
2;本网站图片,文字之类版权申明,因为网站可以由注册用户自行上传图片或文字,本网站无法鉴别所上传图片或文字的知识版权,如果侵犯,请及时通知我们,本网站将在第一时间及时删除,相关侵权责任均由相应上传用户自行承担。
[complaint:内容投诉]
智造资料网打造智能制造3D图纸下载,在线视频,软件下载,在线问答综合平台 » BYD模具设计作业流程:18个步骤,让设计变得清晰明了

