
1、公制螺丝规格表:

2、英制螺丝规格表:

3、螺丝公、英制的选用:若无特别要求,一般选用公制螺丝。
4、螺丝大小的选用:
4.1、固定模板:一般用M8(W5/16″)、M10(W3/8″),特殊情况可选用M6(W1/4″)、M12(W1/2″);
4.2、固定冲头:一般用M8(W5/16″)或M6(W1/4″),特殊情况下可选用M4(W5/32″)。
5、螺丝的间距:
5.1、模板中:
A:M6螺丝间距:一般取80-100;
B:M8螺丝间距:一般取100-120;
C:M10螺丝间距:一般取100-150;
D:M12螺丝间距:一般取120-180。5.2镶件、冲头上:螺丝间距根据实际情况定。
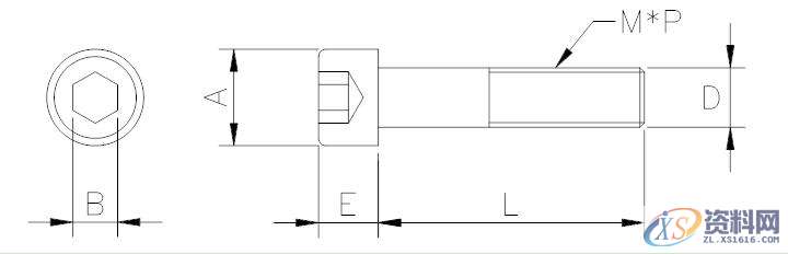
6、螺丝长度的选用::锁进模板的牙长度一般为螺丝直径D的2-3倍,但定购长度必须为上表所列长度规格。
7、螺丝订购代号:“D-L 数量”, 如“M8*40 10”或“W5/16″*1-1/2 10”。
A冲设计标准


B冲设计标准
直身冲头:


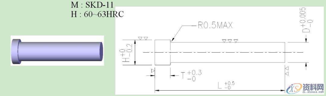
顶针设计标准
顶针类型有两种:LA型和LB型,如下图所示:

顶针规格和相关过孔、止付螺丝、弹簧的使用一览表:(括号内尺寸为位置不够时使用)


选用原则:
1、当弹簧头部在模具冲压过程中一直藏在模板中时,一般选用LB型顶针,如上左图所示。
2、当弹簧头部在模具冲压过程中露出模板时,为确保弹簧不发生歪斜,一般选用LA型顶针,如上右图所示
3、一般选用Ø6的顶针;若位置不够时可选Ø4的顶针;当所需顶料力很大,位置又够放时可选取用Ø8,Ø10的顶针(一般不选用)。
4、顶料销长度的选取择:尽量选取用标准长度
5、分布原则,数量:
5.1 翻孔,冲凸米周围对称排配顶针(数量视翻孔的大小)顶料,也可在翻孔内顶料。
5.2 折弯时如果使用顶针脱料,在模上折弯边线隔20-30MM排配一个顶料销,折弯拐角处一定要排配一个顶针。
5.3 折单边时, 折弯边顶针按4.5.2项原则排配,非折弯边视大小均匀分布2~4个顶针。
5.4顶针的排配一般保证顶针边到材料边或模具相应刀口边距离为3MM,注意其位置尺寸尽量整数或小数点后一位。
5.5 内孔精定位销两边一般对称排配两个顶针,外形精定位一般在附近安排一个顶针。
5.6 另外顶针的布置还要考虑整个工件的稳定性。
东莞潇洒职业培训学校开设课程有:高升专、专升本学历提升、全日制中职学校学位、积分入户、数控编程培训、塑胶模具设计培训,压铸模具设计培训、冲压模具设计培训,精雕、ZBrush圆雕培训、Solidworks产品设计培训、pro/E产品设计培训、AutoformR7工艺分析培训,非标自动化设计、PLC编程、CNC电脑锣操机、平面设计等培训,潇洒职业培训学校线下、线上等网络学习方式,随到随学,上班学习两不误,欢迎免费试学!
联系电话:18029180991(微信同号)QQ:3461766451
学校官网:www.dgxspx.com 智造人才网:www.58hr.net
学习地址:东莞市横沥镇新城工业区兴业路121号-潇洒职业培训学校
1;所有标注为智造资料网zl.fbzzw.cn的内容均为本站所有,版权均属本站所有,若您需要引用、转载,必须注明来源及原文链接即可,如涉及大面积转载,请来信告知,获取《授权协议》。
2;本网站图片,文字之类版权申明,因为网站可以由注册用户自行上传图片或文字,本网站无法鉴别所上传图片或文字的知识版权,如果侵犯,请及时通知我们,本网站将在第一时间及时删除,相关侵权责任均由相应上传用户自行承担。
[complaint:内容投诉]
智造资料网打造智能制造3D图纸下载,在线视频,软件下载,在线问答综合平台 » 螺丝的规格及使用、AB冲设计标准、顶针设计标准分享

