一般情况下,从模具中取出成品,无论是采用单一或者是多组件的顶出机构,其顶出动作都是一次完成。但是,由于成品的形状特殊,或者是量产时的要求,如果在一次顶出后,成品仍然在模穴中,或者是无法自动脱落时,就需要再增加一次顶出动作。这样的顶出动作设计,称为二次顶出。

或者为获得可靠的脱模效果,分解胶件脱模阻力,经二次脱模动作,来完成胶件出模的机构称二次脱模机构。

二次脱模机构示例:
(1)胶件如下图所示,两骨间有半圆凹陷,被后模型腔包紧。

脱模机构下图所示:

第一次脱模使胶件脱出后模型腔,为强脱变形提供空间;第二次脱模,由顶针脱模,胶件半圆凹陷位强脱出型芯推块。
该机构运动过程:第一次脱模四块顶针板都运动,带着顶针、型芯推块同时运动,脱模距离/h,使胶件脱出后模型腔,一次脱模完成。当继续运动至摆块碰上限位面后,摆块摆动使上面两块针板快速运动,带动顶针脱出胶件,完成二次脱模。此机构须注意: h1 > h,H > 10mm1h11(二次脱模运动距离)。
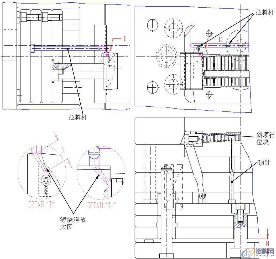
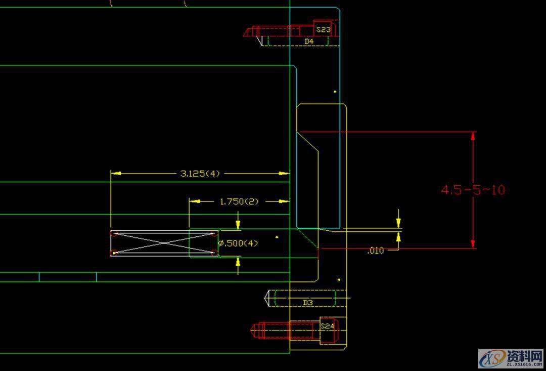
由于潜浇道须设在斜顶行位块上,穿过斜顶块入胶,模具需实现浇道先脱出斜顶块,模具采用二次顶出机构如下图所示。该机构第一次脱模时,拉料杆使浇道不动,顶针、斜顶脱出胶件 M 距离,使胶件与潜浇道断开,潜浇道从斜顶行位块中变形后脱出,第一次脱模结束。第二次脱模四块顶针板都动,顶出胶件、浇道脱出后模型腔。需注意,为保证潜浇道脱出斜顶块,须M > S (潜浇道长度)。

(2)胶件上入浇口、行位分模线如下图所示。

二次顶出机构的例子




延时顶出
延时顶出是解决产品与浇口不能自动断开的问题(浇口形式。搭接式或侧浇口)延时顶出只顶在流道上,延时顶出,可以利用顶针的变化来完成。

至于顶针采用两截式顶针,只是在于增加顶针的强度,避免顶出时发生挠曲变形。采用这种顶针来完成两段式顶出,在模具结构上是最简单的,只要在顶针板上动手脚就行了。此处举的例子,是利用这种机构,来进行潜伏式浇口的切断。

顶出时,左侧的顶针会先动作,直到下固定板顶到右侧顶针下方以红色线条圈起来的顶针头时,右侧的顶针才会开始动作。
这样的二次顶出结构,可以避免潜伏式浇口在顶出时,浇口拉离成品时将成品拉伤。
侧浇口也可以利用类似的方式顶出,避免在浇口位置拉伤成品。
当然,这种顶出方式不仅是用在浇口附近的顶出。由于其第二段顶出行程的起使位置仅需要更改顶针下方的柱状长度就可以达成,而且在模具制作上的费用又较为低廉,这种顶出方式,也很适合之前所提到的较深的盒状物的顶出。

东莞潇洒职业培训学校开设课程有:高升专、专升本学历提升、全日制中职学校学位、积分入户、数控编程培训、塑胶模具设计培训,压铸模具设计培训、冲压模具设计培训,精雕、ZBrush圆雕培训、Solidworks产品设计培训、pro/E产品设计培训、AutoformR7工艺分析培训,非标自动化设计、PLC编程、CNC电脑锣操机、平面设计等培训,潇洒职业培训学校线下、线上等网络学习方式,随到随学,上班学习两不误,欢迎免费试学!
联系电话:18029180991(微信同号)QQ:3461766451
学习地址:东莞市横沥镇新城工业区兴业路121号-潇洒职业培训学校
1;所有标注为智造资料网zl.fbzzw.cn的内容均为本站所有,版权均属本站所有,若您需要引用、转载,必须注明来源及原文链接即可,如涉及大面积转载,请来信告知,获取《授权协议》。
2;本网站图片,文字之类版权申明,因为网站可以由注册用户自行上传图片或文字,本网站无法鉴别所上传图片或文字的知识版权,如果侵犯,请及时通知我们,本网站将在第一时间及时删除,相关侵权责任均由相应上传用户自行承担。
[complaint:内容投诉]
智造资料网打造智能制造3D图纸下载,在线视频,软件下载,在线问答综合平台 » UG模具结构资料 二次顶出与延时顶出机构

