一.产品介绍
传真机面壳产品见图 1,产品最大外形尺寸为 478.0 mm x 230.35 mm x 61.95 mm, 塑件平均胶位厚度 2.30mm,塑件材料为 ABS,缩水率为 1.005,塑件质量为 208.95 克。塑件技术要求为不得存在披峰、注塑不满、流纹、气孔、翘曲变形、银纹、冷料、喷射纹等各种缺陷。

这是日本爱普生公司的传真机面壳。从图 1 可以看出,塑件形状非常复杂,面壳顶面有多个按键孔,每个按键孔的背面有整圈骨位,整体造型复杂。塑件孔的上方有窗口,塑件中间位置亦有大面积开口,这些部位的塑料流动受到限制。因此,浇注系统的设计要满足塑料的充填。塑件分型面为不规则曲面,边缘前后模包 R 处的夹线要均匀,段差不得超过 0.03mm,分型面的加工要采用高速机一次加工到位,采用新刀,不可手工锉刀和油石修整。

图 1 传真机面壳产品图
大型塑件,比如打印机和传真机外壳部件,再大一些的如汽车部件,为了美观,造型越来越复杂。外观越趋向于复杂的曲面,对模具提出了很高的要求。大型模具的钢材选择十分关键。由于日本模具产品更新换代较快,模具多采用软模。软模的钢材没有经过热处理。钢材切削加工时,最佳的硬度为 HRC38,硬度小于 HRC38 时,很难取得良好的表面粗糙度。硬度高于 HRC38 时,切削力增大,刀具磨损加大,主轴发热和颤抖,同样对加工不利。日本模具钢材 NAK80 属于预硬化模具钢材,硬度为 HRC38~41,正好处于有利于加工的硬度范围。因此,本套模具采用 NAK80 制造。

二.模具设计
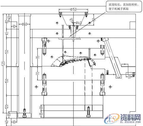
日本模具配件一般需要按照客户要求采用 MISUMI 品牌的模具配件。顶针板的复位弹簧多采用日本东发紫弹簧,东发紫弹簧与 MISUMI 复位弹簧所用钢材不同,热处理与弹性系数相差也很大。根据笔者的使用经验,日本东发紫弹簧的寿命明显高于 MISUMI 复位弹簧,但是东发紫弹簧明显力量较小,在用于大型模具时,需要综合考虑顶出系统的复位力量,如果弹簧力量不足,则需要增加 2~4 支复位弹簧。塑件属于大型塑件,模具型腔排位为 1 出 1,模胚为非标细水口模胚 6585,模具设计图见图 2 所示。
对于大型细水口模具设计时需要注意:
1. 为了安全起见,尽可能设计直身模
2. 导柱导套尾部做好排气

3. A 板较厚时,仔细核算模具打开距离,如果前模的开距过大,则需要考虑水口边强度是否足够
4. 浇注系统凝料较长,容易变形和翻转,需要增加防转柱,以利于机械手抓取
5. 面板和水口板需要设计冷却水

6. 尼龙开闭器固定在 A 板,拉动 B 板,需要注意,不需要钻排气孔在开闭器的顶部
7. 斜顶油槽采用相交的同心圆,深度 0.8,不用交叉型。
8. 模仁下框采用挤紧块结构,便于配框。

9. 前后模胚,均要设计定位销钉,提高模具刚性。
塑件顶出采用顶针、司筒和直顶顶出,确保顶出平稳,塑件无变形现象





图 2 传真机面壳模具图

图 3 模具照片
东莞潇洒职业培训学校开设课程有:高升专、专升本学历提升、全日制中职学校学位、积分入户、数控编程培训、塑胶模具设计培训,压铸模具设计培训、冲压模具设计培训,精雕、ZBrush圆雕培训、Solidworks产品设计培训、pro/E产品设计培训、AutoformR7工艺分析培训,非标自动化设计、PLC编程、CNC电脑锣操机、文职培训、电商培训、平面设计等培训、电商培训,潇洒职业培训学校线下、线上等网络学习方式,随到随学,上班学习两不误,欢迎免费试学!
联系电话:13018639977(微信同号)QQ:2033825601
学校官网:www.dgxspx.com 智造人才网:www.58hr.net
学习地址:东莞市横沥镇新城工业区兴业路121号-潇洒职业培训学校1;所有标注为智造资料网zl.fbzzw.cn的内容均为本站所有,版权均属本站所有,若您需要引用、转载,必须注明来源及原文链接即可,如涉及大面积转载,请来信告知,获取《授权协议》。
2;本网站图片,文字之类版权申明,因为网站可以由注册用户自行上传图片或文字,本网站无法鉴别所上传图片或文字的知识版权,如果侵犯,请及时通知我们,本网站将在第一时间及时删除,相关侵权责任均由相应上传用户自行承担。
[complaint:内容投诉]
智造资料网打造智能制造3D图纸下载,在线视频,软件下载,在线问答综合平台 » 精密塑胶模的设计:进口传真机面壳注塑设计

