1. 什么是液晶支架
液晶支架是石英手表内部的最重要支承部件,为手表提供能源的纽扣电池,计算时间基准采用的石英振荡
器,液晶显示器件 LCD,CMOS 集成电路,微型步进电机以及齿轮传动系统,控制电路和升压电路等元器件
都是安装在液晶支架上。因此,液晶支架要求具有良好的耐磨性和耐老化性,不能存在任何变形和缺胶、披锋、
顶白、烧焦和缩痕等缺陷。此塑件的精度较高,个别重要部位的公差在+-0.01mm,在小型注塑模具中属于精密
模具,其模具设计、模具制造和注塑生产都存在一定难度。
2. 产品分析
图 1、图 2 所示为日本某知名品牌石英手表液晶支架产品图,图 3 为其产品 3D 图。根据塑件的使用性能
要求,材料选择了 POM, POM 原料具有较好的综合性能,在热塑性塑料中是最坚硬的,是塑料材料中力学性
能最接近金属的品种之一,其抗张强度、弯曲强度、耐疲劳强度,耐磨性和介电性都十分优良,可在-40℃—
100℃之间长期使用。POM 拉伸强度较一般尼龙高,耐蠕变,尺寸稳定性好,吸水性比尼龙小,摩擦系数小,
弹性好。产品颜色为原料的自然白色。
图 1 液晶支架正面图
图 1 -1液晶支架正面图
图 1 -2液晶支架正面图
图 1 所示是液晶支架正面图,图 2 是液晶支架底面图,从图中可以看出,产品的尺寸很小,尺寸公差要
求也很严,此图为我们提供了小型精密塑胶零件的图纸表达方法。这种产品设计表达方法以坐标表示为主,先
确定一个坐标原点,选择大的平面为纵坐标原点,产品高低起伏的形状通过坐标数值来体现,坐标数值见表 1
和表 2. 坐标表示的优点是便于产品检测,如此小的塑件,一般用 3 次元和精密投影仪来检测尺寸,坐标表示
的数值图面直观,容易读图识图,也便于尺寸检测报告的自动生成。
三.模具设计
1.型腔数量的确定
石英手表零件,属于大批量生产的产品,如果仅从生产批量和注塑机的生产能力来决定型腔数量,会选择
较多的模穴数量。根据产品尺寸精度要求,型腔数量过多则会造成尺寸精度超差,给注塑带来困难。根据该产
品的技术要求,模具出模数采用 1 模 2 腔。
2. 分型面 的确定
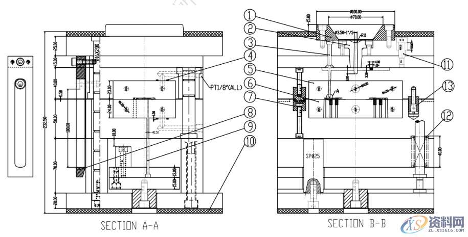
模具的分型面基本上是一个平面,见 4、图 5 和图 6,局部高于分型面的部位,分割成为镶件,此外,多
图 2 液晶支架底面图
表 1 液晶支架正面坐标 表 2 液晶支架底面坐标
处插穿位也切割出小镶件。切割镶件的好处是便于飞模和后期的模具维护。同时,镶件还具有良好的排气作用。
为保证前后模仁合模的准确性,消除高温模具对导柱导套的影响,前后模仁在分型面设计了两个圆锥定位件,
如图 4 件 7 所示。
3. 进胶方式
液晶支架塑件具有较高的精度,产品尺寸较小,胶位最薄的部位仅为 0.5mm, POM 的收缩性对于浇口的大
小比较敏感,因此采用了三板模细水口三点进胶的方式,有效地保证了塑胶的流动和充填。
图 3 液晶支架 3D 图
4.温控方式 的 设计
为了保证塑胶的流动和充填,模具设计了加热·系统,模具的加热元件通常有两种。即热油加热或者电热棒
加热。热油加热需要设计和冷却运水相同的运水回路。本套模具即采用了热油加热,为了防止热量散失,在模
具的面板和底板分别设计了隔热板。


图 4 液晶支架模具结构图
图 5 液晶支架前模仁 图 6 液晶支架后模仁
5. 排气 的 设计
对于精密模具来说,排气的设计至关重要。液晶支架模具在分型面多处磨有排气,前后模仁多处割了镶件,
并在镶件的周边磨有排气。对于三板模,面板和水口推板之间的流道末尾也需要磨排气,并通向模外,见前模
平面图。
6.模具 动作 分析
开模时,在树脂开闭器 13 的作用下,模具首先从 A 板和水口推板处分开,拉料销 3 将水口料从 A 板拉出,
在限位螺钉 11 的限位下,水口推板停止移动,水口料从浇口套脱出被机械手抓走,同时,模具在拉板 8 的作
用下沿分型面从前后模仁处打开,A 板在拉板 8 的限位下停止移动。至此,模具分型面完全打开。塑件在顶针
9 的作用下顶出模外。
四.模具制造要点
1.POM 料具有腐蚀性,因此模仁采用 S136 钢材,热处理 HRC48-52.
2.小镶件孔采用慢走丝切割分 3 次切割,保证尺寸精度。小镶件采用精密磨削,用酒精冷却。
3.所有镶件和前后模仁,在飞模前,均采用三次元检测和投影仪检测,必须完全符合图纸尺寸,不得采用
手工修整。
4.小镶件的插穿部位,不能配合太紧,以免高温膨胀后镶件崩裂。
总结
通过投产后的实践证明,模具设计合理,完全满足大批量生产的要求。可供精密模具设计时参考。
东莞潇洒职业培训学校目前开设课程有:学历提升、积分入户、数控编程培训、塑胶模具设计培训,压铸模具设计培训、冲压模具设计培训,精雕、ZBrush圆雕培训、Solidworks产品设计培训、pro/E产品设计培训、AutoformR7工艺分析培训,非标自动化设计、PLC编程、CNC电脑锣操机、平面设计等培训,潇洒职业培训学校线下、线上等网络学习方式,随到随学,上班学习两不误,欢迎免费试学!
联系电话:13018636633(微信同号) QQ:1740467385
学习地址:东莞市横沥镇
1;所有标注为智造资料网zl.fbzzw.cn的内容均为本站所有,版权均属本站所有,若您需要引用、转载,必须注明来源及原文链接即可,如涉及大面积转载,请来信告知,获取《授权协议》。
2;本网站图片,文字之类版权申明,因为网站可以由注册用户自行上传图片或文字,本网站无法鉴别所上传图片或文字的知识版权,如果侵犯,请及时通知我们,本网站将在第一时间及时删除,相关侵权责任均由相应上传用户自行承担。
[complaint:内容投诉]
智造资料网打造智能制造3D图纸下载,在线视频,软件下载,在线问答综合平台 » 塑胶模具设计之最难设计的液晶支架模具设计方法

