头戴式耳机因其对耳朵伤害小,舒适度高,成为人们听音乐,玩游戏的必备配件,好的头戴式耳机可以形成声场,隔绝外音,高度还原音乐,可以说能给人最佳的听觉体验。本文介绍耳机头带的注塑模具设计要点。耳机头带产品图如图 1 所示,其产品最大外形尺寸为 128.61 mm x 107.52 mm x 22.50 mm,塑件平均胶位厚度 3.84 mm,塑件材料为 PP,缩水率为 1.015,塑件质量为 12.70 克,塑件技术要求为不得存在披峰、注塑不满、流纹、气孔、翘曲变形、银纹、冷料、喷射纹、气泡等各种缺陷。
图1
图1-2
图1-3产品头带图
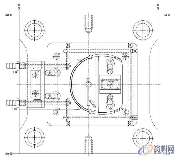
从图 1 可以看出,塑件为多段圆弧组成的近似圆形产品,中间有一个长槽,需要设计滑块抽芯机构。塑件两端内侧分别有一处长条盲槽,需要设计内滑块抽芯机构。耳机头带需要经常从头上取下或戴上,要求塑件有良好的弹性和长久的抗疲劳变形的能力,因此,对于原料中掺入水口料的比例要控制在 25%以下。塑件外形尺寸较大,加之需要设计 3 处滑块抽芯机构,模具型腔排位为 1 出 1,模胚为标准模胚 CH3030 A80B90 C90,中间的滑块为后模外滑块,为了保持模具注塑生产的稳定性,优先将此滑块设计在模具的非操作侧。
内侧的滑块分别设计在天地侧,模具设计图见图 2,3D 模具图见图7。塑件沿圆弧的中心左右对称,沿分型面上下大体上基本对称,塑件上下两个边缘结构不同,动模侧有一宽度1.8mm 的窄槽,此槽对动模的包紧力较大,因此将此面设计在动模侧。
图2
塑件为长条状产品,浇口设计必须选在产品的一端头部,可以防止塑件变形。实际设计中,受天地侧两个滑块的影响,浇口位置设计在靠近滑块的位置,熔融塑料自主流道进入分型面后,沿分流道用侧浇口在塑件内侧进胶。
图3
图4
图5
图6耳机头带模具图
图7后模 3D 图
东莞潇洒职业培训学校目前开设课程有:学历提升、积分入户、数控编程培训、塑胶模具设计培训,压铸模具设计培训、冲压模具设计培训,精雕、ZBrush圆雕培训、Solidworks产品设计培训、pro/E产品设计培训、AutoformR7工艺分析培训,非标自动化设计、PLC编程、CNC电脑锣操机、平面设计等培训,潇洒职业培训学校线下、线上等网络学习方式,随到随学,上班学习两不误,欢迎免费试学!
联系电话:13018636633(微信同号) QQ:1740467385
学习地址:东莞市横沥镇
1;所有标注为智造资料网zl.fbzzw.cn的内容均为本站所有,版权均属本站所有,若您需要引用、转载,必须注明来源及原文链接即可,如涉及大面积转载,请来信告知,获取《授权协议》。
2;本网站图片,文字之类版权申明,因为网站可以由注册用户自行上传图片或文字,本网站无法鉴别所上传图片或文字的知识版权,如果侵犯,请及时通知我们,本网站将在第一时间及时删除,相关侵权责任均由相应上传用户自行承担。
[complaint:内容投诉]
智造资料网打造智能制造3D图纸下载,在线视频,软件下载,在线问答综合平台 » 塑胶模具设计:耳机头带设计,内附3D图纸

