一.塑件分析
蝴蝶结翻盖如图1 所示, 材料为PP, 收缩率为15 ‰,PP 属于结晶性塑料, 材料的柔韧性较好,伸缩率较高。流动性好,吸湿性小, 具有良好的耐折叠性, 但其成型收缩范围大, 收缩率大,易发生缩孔、凹痕、变形, 方向性强, 注射时应严格控制成型参数。零件分上、下盖两部分,上下盖的连接属于典型的塑胶铰链连接,类似于蝴蝶形状,故叫蝴蝶结翻盖,这种翻盖可多次开合,需一次出模成型,广泛应用于洗发水和沐浴露等洗涤用品中。为提高产品的美观程度和防止液体外溢,下盖口部有环状凸筋, 上下盖小孔配合精密, 外观要求光滑, 不允许有明显的分型面接痕。上盖开启和闭合时,需要有弹性,手感松紧适当,自动到位。每个塑件的弹性均衡,外观良好。

图1蝴蝶结翻盖产品图

图2蝴蝶结翻盖产品图

图3蝴蝶结翻盖产品图
1.塑件属于大批量制品,为避免在塑件表面出现进料痕, 保证进料均匀, 模具采用潜伏式浇口进料, 浇口位置选在上下盖扣合处的下盖部位,进胶点在制品合盖后不明显。
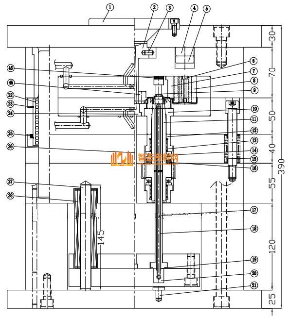
2.为避免在塑件表面产生接痕, 塑件的上、下盖外形部分全部设计在动模。分型面的选取见模具图,鉴于上盖的内表面在定模,开模时,制品会粘定模,故在定模设计了顶出结构。3个型腔共用一组顶针板,每个型腔定模加了4支顶针31。定模顶针板的顶出依靠黄弹簧30的弹力,定模顶针板的回位依靠回针32碰推板回位。
3.由于塑件的下盖动模有螺纹,故设计了液压马达脱螺纹的机构,通过尺寸齿轮传动脱出螺纹。

图4蝴蝶结翻盖产品图

图5蝴蝶结翻盖 动模图
4.模具排位采用1出6,可以满足大批量生产的要求。
5.为了保证动定模合模的准确性,模胚的四边设计了4个精定位边锁,给模具导向。

图6蝴蝶结翻盖 模具剖面图
6.推板设计了滚珠导套,导柱采用无油槽型直线导柱,精准导向。
7.定模仁设计了充分的运水,动内模镶件17内有冷却水管18,保证了冷却效果。
8.模具采用模数为2的标准齿轮,轴承也采用标准件,便于维护。

图7蝴蝶结翻盖 模具剖面图
三.模具动作分析
开模时,分型面打开,制品随在动模上,摆线液压马达启动,通过齿轮传动,转芯11旋转带动制品出模,同时推板弹出。水口料通过顶针26顶出,完成一次注塑循环。

图8 蝴蝶结翻盖 模具剖面图(续)
四.总结
通过投产后的实践证明,模具设计合理,完全满足大批量生产的要求。可供同类模具设计时参考。
(文章转载于网络、仅供学习分享,如有侵权请联系删除)
东莞潇洒职业培训学校目前开设课程有:学历提升、积分入户、数控编程培训、塑胶模具设计培训,压铸模具设计培训、冲压模具设计培训,精雕、ZBrush圆雕培训、Solidworks产品设计培训、pro/E产品设计培训、AutoformR7工艺分析培训,非标自动化设计、PLC编程、CNC电脑锣操机、平面设计等培训,潇洒职业培训学校线下、线上等网络学习方式,随到随学,上班学习两不误,欢迎免费试学!
联系电话:13018636633(微信同号) QQ:1740467385
学习地址:东莞市横沥镇新城工业区兴业路121号-潇洒职业培训学校
1;所有标注为智造资料网zl.fbzzw.cn的内容均为本站所有,版权均属本站所有,若您需要引用、转载,必须注明来源及原文链接即可,如涉及大面积转载,请来信告知,获取《授权协议》。
2;本网站图片,文字之类版权申明,因为网站可以由注册用户自行上传图片或文字,本网站无法鉴别所上传图片或文字的知识版权,如果侵犯,请及时通知我们,本网站将在第一时间及时删除,相关侵权责任均由相应上传用户自行承担。
[complaint:内容投诉]
智造资料网打造智能制造3D图纸下载,在线视频,软件下载,在线问答综合平台 » 注塑模具设计之蝴蝶结翻盖设计

