热固性塑料传递成型工艺bai是在du加料前模具闭合,塑料原料在单独的加zhi料腔中加热dao,呈熔融状态,然后在压力作用下通过模具的浇注系统高速压入型腔,在型内继续受热、受压而固化成型。它与模压成型一样,都有加料腔、型腔,都是在液压机上压制的。它们的主要区别是:
1.热固性塑料传递成型是先合模后浇注成型,而模压成型则是先加料后合模,在型腔中加热、加压成型。
2.传递模有浇注系统,而压缩模没有浇注系统。
3.传递模在成型过程中的气体在型腔内不易排除,所以,一般需开设排气槽;模压成型时有排气动作,成型中产生的气体可通过排气动作排除,一般不需另设排气槽。
模压支架见图1,产品最大外形尺寸为148.87 mm x 81.28 mm x 104.13 mm,塑件平均胶位厚度3.0mm,塑件材料为PC,缩水率为1.006,塑件质量为135.83 克。塑件技术要求为不得存在披峰、注塑不满、流纹、气孔、翘曲变形、银纹、冷料、喷射纹、气泡等各种缺陷。

图1 模压支架产品图
从图1 可以看出,塑件造型为简单支架,前后模均存在较厚骨位。整套模具没有滑块、斜顶以及复杂的机构。模具设计的难点在于如何合理设计模具,方便模具制造,快速填充整个型腔,塑件在顶出时没有变形。


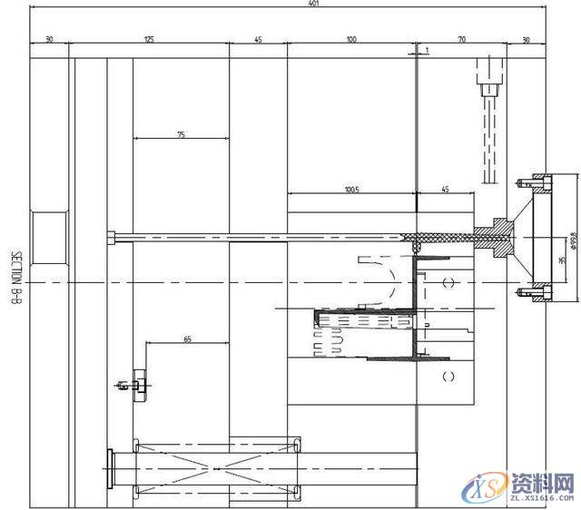
塑件尺寸较大,模具设计型腔排位为1 出1,模胚为标准模胚AT3535,由于是单型腔,模具排位偏心。塑件开模方向的选择为将骨位深度较大的一侧选择在动模侧,这样塑件对动模的包紧力较大,开模时塑件会留在动模侧。

模具浇注系统设计为侧浇口一点进胶,熔融塑料自主流道进入分型面后,侧浇口进入塑件侧壁。由于浇口套和定位圈偏心,模具主流道下方的拉料针和顶棍孔均相应偏心,码模时需要注意。由于骨位很深,因此,模具的排气相当重要。另一方面,由于PC 材料出模困难,模具的省模和抛光需要做好。经过检查,塑件的脱模斜度完全可以满足出模要求。模具设计的关键问题就是镶件的设计。模具采取了全镶拼设计,将动模全部打散做成镶件。见模具设计3D 图。其中镶件C01 和C02 的边缘做成2°斜度便于模仁下框和组装。动模镶件组合示意图见图3,此图主要是为了方便钳工组装。每个镶件之间磨出排气槽0.02mm 深度。

定模运水采用直通式运水,动模运水采用水塘冷却。塑件的顶出采用圆顶针和扁顶针联合顶出。为了配合机械手顶出,拉料针的头部磨出圆锥形,便于顶出时水口料定位。试模后的情况表明,模具设计达到了设计要求。

图2 模压支架模具图

图3 动模镶件组合示意图
东莞潇洒职业培训学校目前开设课程有:学历提升、积分入户、数控编程培训、塑胶模具设计培训,压铸模具设计培训、冲压模具设计培训,精雕、ZBrush圆雕培训、Solidworks产品设计培训、pro/E产品设计培训、AutoformR7工艺分析培训,非标自动化设计、PLC编程、CNC电脑锣操机、平面设计等培训,潇洒职业培训学校线下、线上等网络学习方式,随到随学,上班学习两不误,欢迎免费试学!
联系电话:13018636633(微信同号) QQ:1740467385
学习地址:东莞市横沥镇新城工业区兴业路121号-潇洒职业培训学校
1;所有标注为智造资料网zl.fbzzw.cn的内容均为本站所有,版权均属本站所有,若您需要引用、转载,必须注明来源及原文链接即可,如涉及大面积转载,请来信告知,获取《授权协议》。
2;本网站图片,文字之类版权申明,因为网站可以由注册用户自行上传图片或文字,本网站无法鉴别所上传图片或文字的知识版权,如果侵犯,请及时通知我们,本网站将在第一时间及时删除,相关侵权责任均由相应上传用户自行承担。
[complaint:内容投诉]
智造资料网打造智能制造3D图纸下载,在线视频,软件下载,在线问答综合平台 » 塑胶模具设计之模压支架注塑模

