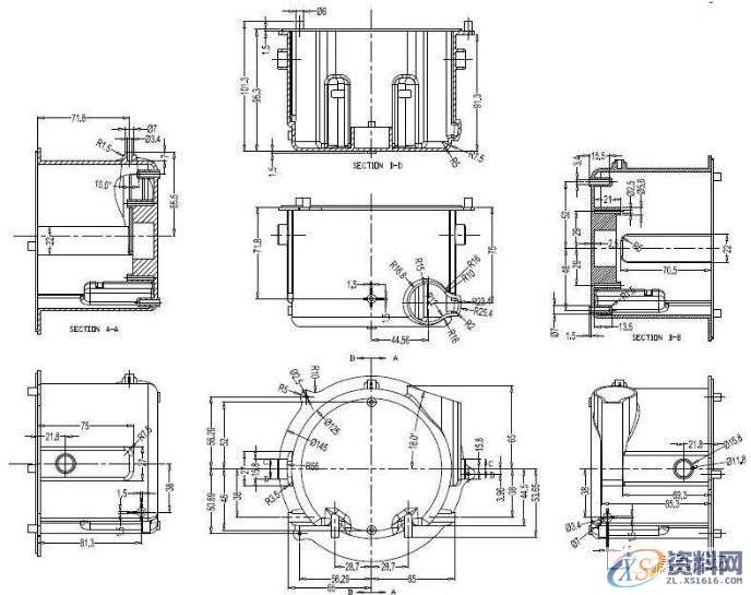
微型马达壳体产品尺寸如图 1,其最大外形尺寸为 154.15mm x145.0mm x 101. 3mm, 材料为 PC,缩水率为 1.006,重量为 195.50 克,塑件平均胶位厚度为 2.50 mm。塑件造型为在圆形壳体的基础上,圆周增加一些柱位和形状特征,四周均需要设计滑块抽芯。

2. 模具设计要点
1. 模具排位:微型马达壳体产品属于大批量生产的塑胶产品。由于产品结构复杂,四侧均需要设计滑块,因此模具排位 1 出 1。模胚为标准模胚 CH 4040 A150 B150 C180,模具的精框、滑块槽、铲机槽在模胚厂开框,保证加工精度。模具使用的注塑机为 250 吨,依据文根保所著的《现代注塑模结构设计实用技术》,塑胶产品的生产批量是决定模具结构的 6 要素之一,因此,根据生产批量决定此模具的结构,要确保能够大批量生产。
2. 进胶方式:PC 料的流动性较差,结合塑件的实际使用情况,按照客户的意见,设计了主流道型大水口进胶的注塑方式,浇口设置在塑件的顶部,流道系统凝料需要在注塑后剪掉。由于主流道的根部直径 7.65mm,PC 料的强度较高,水口料的修剪需要用电热剪钳,注意不得将塑件剪出微型裂纹。


图 1 微型马达壳体产品图

3. 侧向抽芯机构设计:塑件的 4 处滑块均为后模滑块,全部采用斜导柱驱动,所有滑块斜面和底面均增加耐磨板。PC 料的型腔压力很大,4 个滑块的锁紧斜楔均在模胚上原身留出,原身留的斜楔可以提供强劲的滑块锁紧力,避免滑块之间出现披锋。滑块组合 3D 图见图 3.
省模技巧:由于 4 个滑块组成一个圆周,滑块之间的夹线直接影响塑件品质,省模时,需要将 4 个滑块全部装入定模,整体省夹口,可以保证塑件夹线美观。
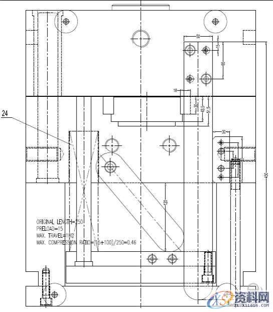
4. 顶出系统设计:塑件的顶出采用司筒和顶针顶出。由于塑件尺寸较高,顶出行程较大,为了确保顶出系统有效的复位,设计了杠杆式先复位系统。见模具设计图 2.
5. 冷却系统设计:前模、后模和滑块均设计了运水,运水设计见模具图。





图2 微型马达壳体模具图

图3 滑块组合3D 图
2D五金模具设计、3D汽车模具设计,冲压模具设计全能班、UG塑胶模具设计、Pore产品设计、北京精雕、Zbrush圆雕设计、Solidworks产品设计培训、UG/Mastercam/Powermill数控编程、三轴/四轴/五轴精雕浮雕模具设计、数控加工CNC电脑锣操机、精雕浮雕操机、Autoform软件、UG/VISI软件应用、PressCAD软件应用、AutoCAD等学历提升课程供君参观参考,找李老师预约提供免费试学。学习电话:13018636633(微信同号)QQ:1740467385
学习地址:东莞市横沥镇新城工业区兴业路121号-潇洒教育
1;所有标注为智造资料网zl.fbzzw.cn的内容均为本站所有,版权均属本站所有,若您需要引用、转载,必须注明来源及原文链接即可,如涉及大面积转载,请来信告知,获取《授权协议》。
2;本网站图片,文字之类版权申明,因为网站可以由注册用户自行上传图片或文字,本网站无法鉴别所上传图片或文字的知识版权,如果侵犯,请及时通知我们,本网站将在第一时间及时删除,相关侵权责任均由相应上传用户自行承担。
[complaint:内容投诉]
智造资料网打造智能制造3D图纸下载,在线视频,软件下载,在线问答综合平台 » 微型马达壳体注射模具设计

