一. 前模顶出
当制品前模部分有很多深骨位或有倒扣需强行脱模时,或者是前模部分需要做斜顶时,为防止制品粘前模、拉白等现象。应在前模加顶出。

二. 倒装模前模油缸顶出
在制品的一面不能有任何缺陷,如胶口印、顶针印等,可以把顶出、烧注系统都做在前模,叫倒装模,把顶出做在前模部分,产品也留在前模这边,而机台的顶出系统是后模部分,这种情况可采用油缸顶出。机构如下图:

三. 延迟顶出
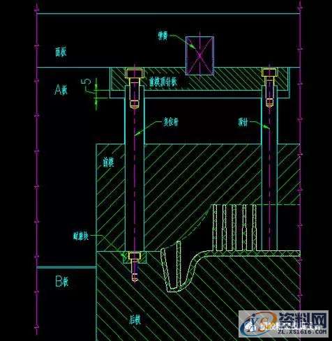
当顶出机构(顶针、直顶、推块)离胶位还有一段距离时,在顶针与产品间夹着其它的部件,如行位,在顶出时顶针需要空顶一段,而顶流道的顶针是直接顶出的,此时顶流道的顶针则要延迟顶出. 当胶位高度相差很大时,由于产品收缩的原因,部分顶针要延迟顶出.


产品与顶块中间夹着行位,顶块在行位下面,需将行位退出,顶块才能顶出,顶出时需要空顶一段,才能到达产品. 而顶流道的顶针,与流道是贴在一起的,只要顶针板一动,流道就会被顶出,为了能与顶块同步顶出,此顶针需要做延迟顶出,如下图片所示.

UG汽车模具设计、2D、3D五金汽车模具设计、UG塑胶模具设计、PROE产品设计、CNC编程、CNC电脑锣操作、精雕浮雕、PRESSCAD软件应用、UG软件应用、UG数控编程、Mastercam数控编程、Powermill数控编程、SOLIDWORKS软件、SOLIDWORKS培训、ZBRUSH雕刻,ZBRUSH雕刻3D建模、UG模具设计、模流分析moldfolw、五轴编程培训、AutoformR7等图档、软件资料免费下载网址:https://zl.xs1616.com/?fromuid=2
免费教学视频下载:https://www.xs1616.com/
李老师电话:13018639977(微信同号)QQ:2033825601
延迟行程走完后如下图片所示:


免责声明:
1;所有标注为智造资料网zl.fbzzw.cn的内容均为本站所有,版权均属本站所有,若您需要引用、转载,必须注明来源及原文链接即可,如涉及大面积转载,请来信告知,获取《授权协议》。
2;本网站图片,文字之类版权申明,因为网站可以由注册用户自行上传图片或文字,本网站无法鉴别所上传图片或文字的知识版权,如果侵犯,请及时通知我们,本网站将在第一时间及时删除,相关侵权责任均由相应上传用户自行承担。
[complaint:内容投诉]
智造资料网打造智能制造3D图纸下载,在线视频,软件下载,在线问答综合平台 » UG塑胶模具设计之其它顶出方式-前模顶出、油缸顶出、延迟顶出,你会哪个 ...
1;所有标注为智造资料网zl.fbzzw.cn的内容均为本站所有,版权均属本站所有,若您需要引用、转载,必须注明来源及原文链接即可,如涉及大面积转载,请来信告知,获取《授权协议》。
2;本网站图片,文字之类版权申明,因为网站可以由注册用户自行上传图片或文字,本网站无法鉴别所上传图片或文字的知识版权,如果侵犯,请及时通知我们,本网站将在第一时间及时删除,相关侵权责任均由相应上传用户自行承担。
[complaint:内容投诉]
智造资料网打造智能制造3D图纸下载,在线视频,软件下载,在线问答综合平台 » UG塑胶模具设计之其它顶出方式-前模顶出、油缸顶出、延迟顶出,你会哪个 ...

