前壳(FRONT COVER)
图表1
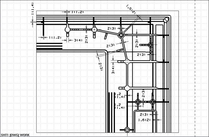
1。供装配使用的螺丝柱(A*)
从常规设计来讲,柱位分为两种:
A。有装配和顶出两种功能
装配用螺丝柱一般要承受较大的压力,并且和螺钉的直径有一定的配合要求,所以它的内、外径及内径的大小端均需严格按图纸要求保证。
B。只具有顶出功能。
根据功能的不同,它们的结构也略有不同。见附图。
支撑筋条高度一般应低于柱高1MM(A类),特殊要求需要平齐的也应控制在0—0.2MM的负公差范围(B类),见图2。
一个人不求创新,就不能适应新的环境:时间总在改变一切。 ------培根



个人所能完全掌握的仅仅是他自己所能理解的。 -----------尼采
——前后壳紧固用螺丝柱
一般有6—8个,用于紧固后壳,是整机装配的关键部位,装配后柱位之间无间隙。因承受较大压力,故需保证一定的强度。与之相连的加强筋的厚度除与侧壁相连的筋条为1.0(1.2)MM,其余一般为2(3)MM。见图1所示AB位。
——前壳与显象管紧固用螺丝柱
一般分布在上下左右靠近胆边的四个角,共四个,是直径最大,承受压力也最大的四个柱。与之相连的加强筋的厚度一般为2(3)MM。见图1所示AA位。
——前壳与扬声器紧固用螺丝柱
扬声器的数量根据产品大小的不同,可分为1、2、4个。一般分布在左右两侧,如只有一个扬声器则多数分布在下侧。螺丝柱具体的数量在4-20个之间。其中固定大扬声器的螺丝柱直径为8MM,相连筋为2(3)MM;固定小扬声器的螺丝柱直径为7MM,相连筋为1.2(1.4)MM。见图1所示AF位。
——前壳与排钮紧固用螺丝柱
一般为2—3个,用于紧固小件排钮,分布在下侧靠近排钮安装位的地方。排钮安装后的周边间隙一般在0.1—0.3MM之间。见图1所示AC位。

——前壳与导光柱紧固用螺丝柱
一般只有1个,分布在下侧靠近导光柱安装位的地方。安装后的周边间隙一般在0.1—0.3MM之间。见图1所示AD位

——前壳与电源按钮紧固用螺丝柱
一般只有1个,分布在下侧靠近电源按钮安装位的地方。安装后的周边间隙一般在0.1—0.3MM之间。见图1所示AE位。

——前壳与AV端子板紧固用螺丝柱
一般有2个,分布在下侧靠近AV端子安装位的地方。见图1所示AG位。
2. 其他与装配有关的部位(B*)
——与后壳围边配合的止口位
分布在产品的上 左 右三面,主要作用是控制前后壳之间的装配缝隙为0.2—0.3MM。
.
——与主线路板装配的卡槽位
见第一张视图中的放大图。卡槽位的尺寸有比较严格的要求。
——与后壳装配的底板定位卡槽
和卡筋位一样,均起为前后壳定位的作用。为方便装配和减震,一般留有0.2-0.4MM的间隙。见图4

——与后壳底座装配的外形
一般周边留有0.5-1.0MM的间隙。
人的举动总是一再重复。因此卓越不是单一的举动,而是习惯。---------亚里士多德
图表5

前后壳装配后,底座高度平齐,周边有0.5MM的段差。
图表6

3。其他结构
——除上述指出的螺丝柱外,其余柱位多为方便顶出而设立。
——在底座上有一些与其他小件配合的部位。其中以下几处为标准设计
a.底座上线路板卡槽A

b.底座上线路板卡槽B

——分布在胆边四周的筋位起支撑和定位显象管的作用,它们之间的距离决定了显象管装配的松紧程度,经常在试模后会有调整,一般在设计时向减胶方向拔斜度。
——胆边上 、左 、右三周分布的浅筋用作贴绒垫,要求绒垫压紧显像管后,胆边没有壳离。因此,筋的顶面到胆面的高度要控制在0.4-0.05mm(胆边深1.0MM),见上图放大部分。下边无浅筋,胆边高度保证1.0mm。
——胆边上 、左 、右三周分布的浅筋端部离铍铜镶件大于或等于5mm
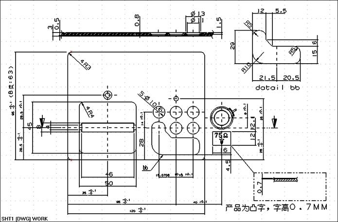
——铭牌位及排钮位的尺寸说明。
三星铭牌为标准件,故响应的产品尺寸是统一的。见下图。
三星按钮位的设计采取动、定模对碰的形式,动模部分比定模部分周边大0.4MM。

4.筋条大小说明
筋条厚度在无特殊要求的情况下,公差取+/-0.1MM。

三星公司所提供的3D模型一般不作出拔模斜度,模型所示为筋条小端尺寸。
——与侧壁相连的筋条小端为1.0MM,大端为1.2MM。避免缩水。
——与CRT紧固柱位相连的筋条小端为2MM,大端3MM。不可太厚,以免筋、柱位吹空,降低受力柱的强度。
——CRT周边加强筋小端为2.5MM,大端3.5MM。
——前、后壳固定柱、喇叭体固定柱加强筋的小端为2MM,大端3MM。
——扬声器固定柱加强筋的小端为1.2MM,大端1.4MM。
——跑道位筋条小端为1.6MM,大端2MM。
——连接上、下角部的筋位小端为1.2MM,大端1.4MM。其作用在于防止气辅时串气。
5.喇叭网孔(SPEAKER HOLE)规格:

喇叭网孔部分的胶厚为3.5MM,定模碰穿孔高1.2MM,非碰穿孔高1.8MM,动模部分齿高1.4MM,筋深0.9MM。
工作本身并不能带来经济上的安全感,具备良好的思考、学习、创造与适应能力,才能立于不败之地。
后壳(ACKCOVER)
相对于前壳来讲,后壳的结构比较简单。需要指出的是因为后壳有蚀纹的要求,故在出模斜度上要注意。
图表7

_前后壳紧固用螺丝柱
一般为6—8个,用于紧固前壳。见图7示AA位。通常有两种形式:A。前后壳柱位表面平齐。见图3
B.前壳柱位嵌入后壳柱位内。见附图8。 
_天线出口位,见图7示BB位。三星此位的设计有两种不同的标准形式。

_ 警示语位,见图7示CC位。根据销售地域的不同,其内容有不同。图7示DD位为PVC贴片位。
下图基本上包括了25寸及以上电视机后壳标牌处的设计。
l
_为方便搬运而设计的把手位,一般15寸以下的缺省设计。图7示EE位。
_为方便搬运设计的定位筋,这种结构目前只见于三星电视机。图7示FF位。
需要注意的是在此定位筋的反面有减胶凹槽,以消除缩水痕。

_ AV端子口位,见图7示GG。三星此处的标准设计见下图。


_起导向作用的加强筋,见图7示HH位。这种结构有些设计缺省。
_线路板卡槽位。和前壳一样,尺寸要求严格。图7示II位。
_前后壳装配筋位,见图7示JJ位。
_出线槽位,见图7示KK位。

_筋条厚度说明:与侧壁相连的筋为1.0(1.2)MM。
_散热孔(VENT)规格参照下图:

说明:
A.碰穿孔小端2.00,下偏差-0.1,上偏差+0.2;碰穿孔大端4.00。碰穿孔间距6.00。
B.碰穿孔部分的胶厚一般为3.00MM,假齿深1.00MM。
C.动模侧横筋长出碰穿齿2MM。
电视机产品外观要求
前壳(FRONT COVER)
前壳的外观关系到成品的第一直观印象,所以对它的要求显得尤为重要,整体来讲,要达到
1. 模具表面镜面抛光效果,各个R角轮廓清晰,过渡顺滑;
2. 喇叭网孔根部线条清晰,正视圆孔无偏心;
3. 功能钮处线条清晰,动、定模无错位现象,和各小件配合后间隙均匀;
4. 侧AV处周边装饰线均匀,孔位尺寸保证。
5. 胆边四周轮廓清晰,形象保证。
下面就一些具体部位做一些说明。







后壳(BACK COVER)
后壳装配尺寸较少,结构简单,但外观要求较为严格,主要体现在以下几个方面:
1. 定模整体镜面抛光,表面无拖花、顶白、缩水痕、批锋。
2. 碰穿齿尺寸符合要求,转角处均匀过渡。
3. 轮廓清晰,R角圆滑过渡。
4. 蚀纹均匀,范围从分型线上1.0MM开始,碰穿齿及周边1.0MM范围内不蚀纹。
5. 箭头及刻字清晰,浇口处无批锋。
以下是一些具体说明。




1;所有标注为智造资料网zl.fbzzw.cn的内容均为本站所有,版权均属本站所有,若您需要引用、转载,必须注明来源及原文链接即可,如涉及大面积转载,请来信告知,获取《授权协议》。
2;本网站图片,文字之类版权申明,因为网站可以由注册用户自行上传图片或文字,本网站无法鉴别所上传图片或文字的知识版权,如果侵犯,请及时通知我们,本网站将在第一时间及时删除,相关侵权责任均由相应上传用户自行承担。
[complaint:内容投诉]
智造资料网打造智能制造3D图纸下载,在线视频,软件下载,在线问答综合平台 » 电视机外壳结构(图文教程)

