5-4-1 标准注射模架
模架是注射模的骨架和基体,通过它可以将模具的各个部分有机地联系成一个整体,如图5-4-1所示。标准模架一般由定模座板、定模板、动模板、动模支承板、垫块、动模座板、推杆固定板、推板、导柱、导套及复位杆组成。除此之外,还有一些特殊结构的模架,如点浇口模架、带推件板推出的模架等。
注射模具的基本结构有很多共同点,使用标准模架可以提高模具的质量、缩短模具的制造周期、降低模具的制造费用。目前,我国塑料注射模架的国家标准有两个,即《塑料注射模中小型模架》(GB/T12556-1990)和《塑料注射模大型模架》(GB/T12555-1990)。

图5-4-1 最常见的注射模架
1-定模座板;2-定模板;3-导柱及导套;4-动模板;5-动模支承板;
6-垫块;7-推杆固定板;8-推板;9-动模座板
一 中小型标准模架
中小型模架的周界尺寸范围≤560mm×900mm,按结构特征分基本型和派生型两大类。
1. 基本型
基本型是以直接浇口(包括潜伏式浇口)为主的结构形式,共4种,其代号分别为A1、A2、A3、A4,如图5-4-2所示,其模架的组成、功能及用途见表5-4-1。
表5-4-1 基本型模架的组成、功能及用途
型 号 | 组成、功能及用途 |
中小模架A1型 (大型模架A型) | 定模采用两块模板,动模采用一块模板,无支承板。设置以推杆推出塑件的机构组成模架。适用于立式与卧式注射机,单分型面一般设在合模面上,可设计成多个型腔成型多个塑件的注射模。 |
中小模架A2型 (大型模架B型) | 定模和动模均采用两块板,有支承板,设置以推杆推出塑件的机构组成模架。适用于立式与卧式注射机上,用于直浇道,采用斜导柱侧向抽芯、单型腔成型,其分型面可在合模面上,也可设置斜滑块垂直分型脱模式机构的注射模。 |
中小模架A3、A4型 (大型模架P1、P2型)
| A3型(P1型)的定模采用两块模板,动模采用一块模板,它们之间设置一块推件板联接推出机构,用以推出塑件,无支承板。 A4型(P2型)的定模和动模均采用两块模板,它们之间设置一块推件板联接推出机构,用以推出塑件,有支承板。 A3、A4型均适用于立式与卧式注射机上,适用于薄壁壳体形塑件,脱模力大,以及塑件表面不允许留有顶出痕迹的塑件注射成型的模具。 |
注:1. 定、动模座可根据使用要求选用有肩或无肩形式;
2. 根据使用要求选用导向零件和它们的安装形式;
3. A1~A4型的功能及通用性强,是国际上使用模架中具有代表性的结构。

图5-4-2 基本型标准模架
2. 派生型
派生型是在基本型的基础上派生而来,以点浇口和多分型面为主的结构形式,共9种,其代号分别为P1~P9,如图5-4-3所示,其模架的组成、功能及用途见表5-4-2。
表5-4-2 派生型模架的组成、功能及用途
型 号 | 派生型模架的组成、功能及用途 |
中小模架P1~P4型 (大型模架P3、P4型) | P1~P4型由基本型A1~A4对应派生而成,结构形式上的不同点在于去掉了A1~A4型定模板上的固定螺钉,使定模部分增加了一个分型面,多用于点浇口形式的注射模。其功能和用途符合A1~A4型的要求。 |
中小模架P5型 | 由两块模板组合而成,主要适用于直接浇口、简单整体型腔结构的注射模。 |
中小模架P6~P9型 | 其中P6与P7,P8和P9是互相对应的结构,P7和P9相对于P6和P8只是去掉了定模座板上的固定螺钉。这些模架均适用于复杂结构的注射模,如定距分型自动脱落浇口式注射模等。 |
注:1. 派生型P1~P4型模架组合尺寸系列和组合要素均与基本型相同;
2. 其模架结构以点浇口、多分型面为主,适用于多动作的复杂注射模;
3. 扩大了模架应用范围,增大了模架标准的覆盖面。

图5-4-3 派生型标准模架
另外,标准中还规定,以定模、动模座板有肩、无肩划分,又会增加13个品种,总计共26个模架品种。这些模架规格基本上覆盖了注射容量为10~4000cm3注射机用的各种中小型热塑性和热固性塑料注射模具。
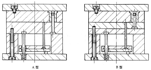
二 大型标准模架
大型模架标准中规定的周界尺寸范围为630mm×630mm~1250mm×2000mm,适用于大型热塑性塑料注射模。模架品种有A型、B型组成的基本型(如图5-4-4所示)以及由P1~P4组成的派生型(如图5-4-5所示),共6种。A型同中小型模架中的A1型,B型同中小型模架中的A2型。大型模架的组成、功能及用途见表5-4-1和表5-4-2。

图5-4-4 大型标准模架

图5-4-5 派生型大型标准模架
该文章所属专题:塑料模具设计教程
5-4-2 支承零部件的设计
模具的支承零部件主要指用来安装固定或支承成型零件及其它结构零件的零部件,主要包括固定板、支承板、垫块、支撑柱和动、定模座板等。
一 固定板和支承板的设计
固定板(动模板、定模板)在模具中起安装和固定成型零件、合模导向机构以及推出脱模机构等零部件的作用。为了保证被固定零件的稳定性,固定板应具有一定的厚度和足够的强度,一般采用碳素结构钢制成,当对工作条件要求较严格或对模具寿命要求较长时,可采用合金结构钢制造。

支承板,又称动模垫板,是垫在动模型腔下面(或主型芯固定板下面)的一块平板,其作用是承受成型时塑料熔体对动模型腔或型芯的作用力,以防止型腔底部产生过大的挠曲变形或防止主型芯脱出型芯固定板,因此应具有较高的平行度、刚度和强度。
支承板与固定板之间通常采用螺栓连接,当两者需要定位时,可加插定位销,如图5-4-6所示。
二 垫块的设计
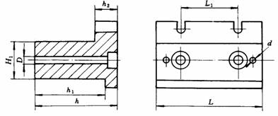
用于支承动模成型部分并形成推出机构运动空间的零件称为垫块,又称支承块,如果和动模座板设计为一体,也称模脚或支架,一般用中碳钢制造,也可以用Q235钢、HT200或球墨铸铁等制造。对于外形为圆形的模具,单独设计成一个零件比较经济;对于方形模具,通常把垫块与动模座板设计为一体,图5-4-7所示结构就是用于方形模具的垫块设计。图中尺寸h1提供了推出元件安装及其运动空间,它是由推杆(管)、固定板、推板及推出行程确定的。h、H1、L皆按模具的具体结构要求确定;L1是在注射机上安装模具采用螺钉直接固定时两螺钉穿过孔之间的距离;h2是供模具安装时搭压板或螺钉固定用;D是装配动模部分时的内六角螺钉穿过孔,若尺寸L长可采用3个或4个螺钉过孔;d是动模部分装配时的定位销孔。

图5-4-7 方形模具的垫块结构
三 支撑柱的设计
对于大型模具或垫块间跨距较大的情况,要想保证动模支承板的强度和刚度,必将大大增加动模板的厚度,这样既浪费材料又增加了模具的重量。这时,应在动模支承板下面加设空心或实心的圆柱形支柱,以减小垫板的厚度,有时支撑柱还能对推出机构起到导向作用。支撑柱的安装形式如图5-4-8所示,其个数可根据动模支承板的受力状况及可用空间而定,通常取2、4、6、8等,分布应尽量均匀。

图5-4-8 支承柱的安装形式
1-螺栓;2-垫块;3-圆柱销;4-动模支承板;5-支承柱(支承块);6-动模座板
该文章所属专题:塑料模具设计教程
5-4-3 定模座、动模座板的设计
与注射机的动、定模板相连接的模具底板称为动、定模座板,如图5-4-1中的零件1、9分别为定模座板和动模座板。动、定模座板在注射成型过程中起着传递合模力和承受成型力的作用,为保证动、定模座板具有足够的强度和刚度,动、定模座板也应具有一定的厚度。对于小型模具,其厚度一般不小于15mm;而对于一些大型模具,其厚度可达75mm以上。动、定模座板的材料多选用碳素结构钢或合金结构钢,调质处理至28~32HRC。
在设计或选用标准动、定模座板时,应注意以下几点:
(1)动、定模座板的外形尺寸应不受注射机拉杆间距的影响;
(2)中、小型模具一般只在定模座板上设置定位孔,而大型模具需在动、定模座板上均设置定位孔,模具的定位圈尺寸与设备的定位孔径需配合良好,如图5-4-9所示;
(3)动、定模座板安装孔的位置和孔径应与注射机的移动模板及固定模板上的一系列螺孔相匹配,以便安装、压紧模具。对于中、小型模具,安装时常采用压板固定的方式,此时动、定模座板的两侧均需在其原来外形尺寸的基础上加宽25~30mm。

图5-4-9 大型模具的定位结构
1-定位圈;2-动模座板;3-定模座板
该文章所属专题:塑料模具设计教程
1;所有标注为智造资料网zl.fbzzw.cn的内容均为本站所有,版权均属本站所有,若您需要引用、转载,必须注明来源及原文链接即可,如涉及大面积转载,请来信告知,获取《授权协议》。
2;本网站图片,文字之类版权申明,因为网站可以由注册用户自行上传图片或文字,本网站无法鉴别所上传图片或文字的知识版权,如果侵犯,请及时通知我们,本网站将在第一时间及时删除,相关侵权责任均由相应上传用户自行承担。
[complaint:内容投诉]
智造资料网打造智能制造3D图纸下载,在线视频,软件下载,在线问答综合平台 » 塑料模具设计教程_5-4模具结构零部件的设计(图文教程)

