CAD机械制图的一般过程:
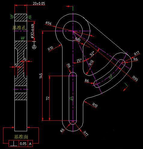
分析零件结构:我的经验:将零件摆放最平稳的面作为基面;中心线、对称线作为基线;按装配关系绘图;零件在图中的表现,应线条少、规则,千万不可随意摆放;尽量以最少的图来表现一个零件。图1所示零件,Φ32孔是主要的安装基孔,装配于一个轴上;它的一个端面是安装基面,依靠这个基面是保证零件装配到轴上的指定位置。所以,绘图时,首先绘Φ32的中心线(图2)及基面所在线(图8),其余各部尺寸都是通过这些中心线、基线偏移而成。
作图:
A 绘图时最常用的一个工具“直线”。首先绘Φ32的中心十字线(图2),打开CAD软件,(第一次打开时,在对话框中简单设置一下单位“毫米”等),在“模型”窗口中,采用直线工具,在“正交”状态绘两条十字线。简单吧,你会用“直线”啦,请不要顾及设置线型、线宽、中心点位置或输入英文命令或尺寸长短等,新手没有必须做到很完善,当你练习了10个(虚词)零件图后,你就逐渐地意识到一些必要的设置。
B “圆”、“偏移”、“旋转”工具。首先作出Φ32圆,然后点击“偏移”工具/在命令行中输入尺寸/点需要偏移的线(注意要偏移的方向,自己试试就明白),完成图3中的各基线(基线可以定位一此形状所在位置);画两水平线,旋转得图中两斜线。
C “圆”及“修剪”、“直线”工具。因为此零件所涉及的圆或圆弧较多。在B步中基线所确立的中心位置,按尺寸画圆。同心圆绘制采用“偏移”工具较方便;用直线(切线)连接各圆;修剪多余的线头。(图4)、(图5)。一般情况下,用过“偏移”工具后,总有“修剪”或“延伸”工具紧随其后作处理以使图面清爽,这个过程中可能穿插一些“直线”、“圆”等绘图工具

D 作两圆切线及“倒圆角”(图6)。“倒圆角”工具实际上是圆的作法中的一种“相切、相切、半径”-----绘图/圆/相切、相切、半径。哈,这个工具是不是重复了呢?作两圆的切线方法(见图7)。

E 作另一视图:“直线”工具作基线:Φ32的中心线及基面形成的线(图8)
F “偏移”、“剪切”、“拉伸”、“倒圆角”、“填充”等工具交互使用,作(图9),注:金属零件的剖面线一般为细斜线,这是国标规定。此图中的剖面,是由图1中剖切线剖切的结果。
G 二维图完成,只是一小部分的工作。我们需要对零件标注粗糙度符号、尺寸及其公差、形位公差、技术要求等(见图1);还有:修改线型、指点线宽、设立图纸框等。
1;所有标注为智造资料网zl.fbzzw.cn的内容均为本站所有,版权均属本站所有,若您需要引用、转载,必须注明来源及原文链接即可,如涉及大面积转载,请来信告知,获取《授权协议》。
2;本网站图片,文字之类版权申明,因为网站可以由注册用户自行上传图片或文字,本网站无法鉴别所上传图片或文字的知识版权,如果侵犯,请及时通知我们,本网站将在第一时间及时删除,相关侵权责任均由相应上传用户自行承担。
[complaint:内容投诉]
智造资料网打造智能制造3D图纸下载,在线视频,软件下载,在线问答综合平台 » CAD机械制图的一般过程(图文教程)

