前 言
批量生产时,可采用一些快速和简易夹具来缩短工件的装夹时间,从而提高劳动生产率。本文从生产实际出发,提出缩短工件装夹时间的两种有效途径,同时进行分析和研究。
一、多工件夹持的夹具思路
在加工成批件时, 为了提高生产率, 常将多个工件夹紧在一个夹具上。多工件夹紧方法很多: 如速杆联动桔构、弹性夹紧桔构、塑料夹具等。但是这些结构都有一定的缺点。下面介绍几种多件夹紧用的夹具思路,经测试效果较好。现将这几种夹具思路介绍如下:
图1 所示为蜗杆多件装夹加工。工件长度较短,且内孔与两端面都已精加工。多个工件利用心轴同时装夹,心轴一端在三爪自定心卡盘中夹持,另一端用尾座顶尖顶住,这样减少了装夹时间,也减少了工件测量时间,另外还减少了切入和切出时间,提高了劳动生产率。
图 1
图2所示为套圈多件加工。用棒料加工直径较小的套圈,可以先车外圆,并按套圈长度车槽,槽底直径略小于钻头直径,然后用钻头钻孔。当钻孔至一定深度时,套圈就脱落并套在钻头上,去毛刺后即可以完成加工。
图2
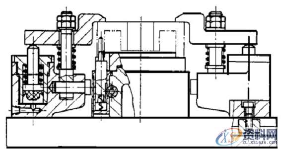
图3 所示是卡爪统槽夹具, 用活塞直接夹紧工件。当工件位置允许时, 可以用一个活塞压紧一个工勺件。若位置较小, 可以用一个活塞压紧两个工件。这种夹紧方法简单, 夹紧力小, 适用于很小件的夹紧。
图3 直接夹紧
杠杆式压板夹紧如图4所示。图4是卡爪座铣顶面夹具通过活塞同时顶推两块杠杆式压板对两个左右分布的工件进行夹紧。此夹具适用于在双头铣床上使用, 两排零件同时加工由于杠杆的增力作用, 夹紧力较大。
图4 杠杆式压板夹紧
由于高压油缸很小巧, 因此可将油缸和压板组成一个整体, 成为移动式通用压板, 如图5 所示。这类压板可在机床工作台上来回移动压板高低可通过螺钉调节。这类压板使用灵活,调整方便, 可在任意位置夹紧工件,适用于中型或大型工件。多个压板压紧, 无论是在成批生产或单件生产都很适用。
图5 移动式压板
二、不停机的夹具思路
当工件加工完毕时,不必停车,只要退出回转顶尖,工件即可被取下,并装上下一件工件。由于不用停车,减少了辅助时间,效率大大提高。
图6 所示为简易不停机夹头。车削时,工件左端靠带有锥孔的夹头 带动,另一端用回转顶尖顶住。由于顶尖的轴向推力,使锥孔和工件左端的摩擦力加大,而产生自锁。轴向推力越大,自锁性越好,工件夹得越牢固。当工件加工完毕时,不必停车,只要退出回转顶尖,工件便可以自动落下。
图6 简易不停机夹头
1.夹头 2.工件 3.回转顶尖
过去由于生产批量较小.一直采用普通车床配合三爪自动定心卡盘来加工。随着生产批量和产品质量的要求不断提高。通用的装备已经不能满足生产的需要。
主要存在的问题是:
1)、生产效率低
2)、上卸工件工人劳动强度大
3)、频繁停车启动造成电机寿命大大降低,常常出现烧电机事故,严重影响生产,增加产品成本。
图7 不停机弹簧夹具
1-弹簧 2-垫圈 3-定位心轴 4-工件
具体使用效果:
1:由于可以不停车装卸,产量大大提高,达到了高效、省力的效果。
2:投入使用后减少电机烧损等设备故障.工作时设备电机温度下降,使用半年内没有发生过烧电机事故。
3:加工产品保障了图纸要求,同时保证了产品质量的提高。
4:夹头可以更换不同直径的弹簧套筒,用于加工不同规格的同类产品,通用性好,应用比较广泛。
东莞潇洒职业培训学校开设课程有:数控编程培训、塑胶模具设计培训,冲压模具设计培训,精雕、ZBrush圆雕培训、Solidworks产品设计培训、pro/E产品设计培训、AutoformR7工艺分析培训,潇洒职业培训学校线下、线上网络学习方式,随到随学,上班学习两不误,欢迎免费试学!联系电话:13018639977
联系电话:13018639977(微信同号)QQ:2033825601
学习地址:东莞市横沥镇新城工业区兴业路121号-潇洒职业培训学校
1;所有标注为智造资料网zl.fbzzw.cn的内容均为本站所有,版权均属本站所有,若您需要引用、转载,必须注明来源及原文链接即可,如涉及大面积转载,请来信告知,获取《授权协议》。
2;本网站图片,文字之类版权申明,因为网站可以由注册用户自行上传图片或文字,本网站无法鉴别所上传图片或文字的知识版权,如果侵犯,请及时通知我们,本网站将在第一时间及时删除,相关侵权责任均由相应上传用户自行承担。
[complaint:内容投诉]
智造资料网打造智能制造3D图纸下载,在线视频,软件下载,在线问答综合平台 » 缩短工件装夹时间的标准夹具思路前 言一、多工件夹持的夹具思路二、不停机的夹具思路

