建模目标:运用UG建模模块建立手动叉车的三维模型。
效果预览:


建模步骤:
第一部分、车体外壳
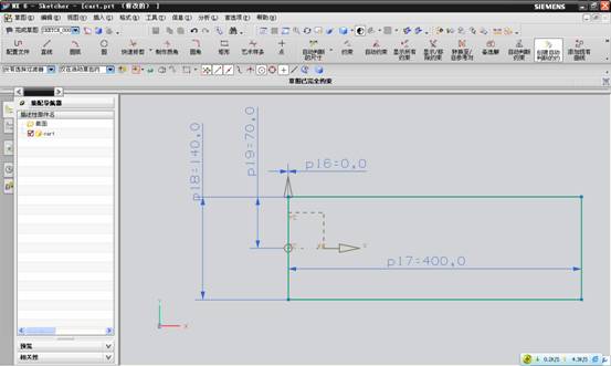
第一步、通过拉伸(拉伸距离20)建立壳体底部模型,见下图。

第二步、通过矩形腔体(长340,宽60,深20)建立叉车叉开部分,见下图。

第三步、通过矩形腔体(长50,宽30,深20)命令,建立如下特征。

第四步、通过草图及修剪体建立车体外壳尾部特征,见下图。


第五步、建立垫块(长15,宽5,高20),见下图。

对垫块进行边倒圆(半径7.5)及钻孔(孔径为5)处理,见下图。

第六步、对叉车载重部分进行抽壳处理,抽壳厚度5,见下图。

第七步、对车体外壳尾端进行拉伸及镜像处理,如下图所示。


第八步、通过拉伸及拔模(拔模角度为10°)建立壳体前端模型,见下图。

第九步、建立矩形垫块(40,20,60),见下图。

第十步、对上述垫块建立的特征进行边倒圆(半径20)及钻孔(直径15,深度15)处理,见下图。

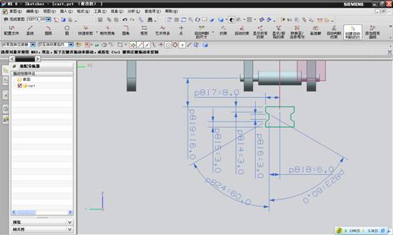
第十一步、对车体外壳前端进行抽壳处理,抽壳厚度为5,备选厚度为40,见下图。

第十二步、通过拉伸建立车体外壳前端连接突出部,见下图。


第十三步、对外壳前端上的连接突出部进行钻孔(半径5,深度20)及镜像处理,见下图。

第二部分、传动轴及底盘
第一步、建立如下基准平面,如下图。

第二步、通过拉伸(对称值,22;对称值,12)建立从动轮连接轴的连接栓,见下图。

第三步、通过回转建立从动轮,接着钻孔(直径4),见下图。


第四步、运用引用几何体命令(距离40)建立另一个从动轮,见下图。

第五步、通过拉伸(对称值,12)建立从动轮的连接轴,见下图。


第六步、通过拉伸(拉伸距离2)建立从动轮的侧翼护板,见下图。


第七步、对从动轮的侧翼护板进行镜像及边倒圆(半径6)处理,见下图。

第八步、通过草图及管道(外径6)建立从动轮的连接轴,见下图。


第九步、通过拉伸(厚度2)建立连接轴端特征,见下图。

该文章所属专题:UG实例建模
第十步、对连接轴进行边倒圆(半径5)及钻孔(直径4)处理,见下图。

第十一步、通过拉伸建立连接轴的连接栓,见下图。

第十二步、通过管道(外径4)建立底座的连接轴,见下图。

第十三步、通过草图及管道(外径5)建立从动轮的连接轴,见下图。


第十四步、通过拉伸(拉伸厚度为2)建立如下连接轴端特征,见下图。然后,对一端特征进行镜像处理。

第十五步、对连接轴端进行边倒圆(半径6)及钻孔(直径4)处理,见下图。

第十六步、通过草图及管道(外径为4)建立从动轮传动轴与底座之间的连接轴,见下图。


第十七步、通过拉伸建立底座,草图如下,对四周进行倒圆角处理。


第十八步、运用镜像体建立另一侧的传动轴及从动轮,最终效果见下图。

第三部分、方向轮及转向轴
第一步、建立方向轮的草图,接着拉伸,见下图。

第二步、通过拉伸对车轮进行细化处理,小托如下图所示。

运用镜像体建立另一侧的车轮,见下图。

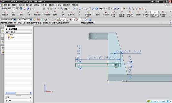
第三步、通过拉伸建立车轮连接部分(这里尺寸任意)。


第四步、运用拉伸建立圆盘特征,该部分连接底盘,草图及效果如下图所示。


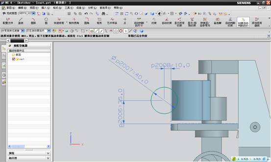
第五步、建立与上步圆柱对应的圆柱体(直径30,高度5),两者之间隔着底盘。见下图。

第六步、运用圆台建立车轮转动轴的剩余部分,效果如下图所示。其中,大圆台直径45,高度35,小圆台直径13,高度45。

方向轮及转动轴最终效果如下。

第四部分、调节阀
第一步、运用拉伸建立调节阀外壳,拉伸草图如下图所示。

第二步、通过拉伸(对称,拉伸30)建立辅助圆柱体,并与外壳求差,见下图。


第三步、接着,运用修剪体对外壳进行修剪,见下图。


对外壳体进行抽壳处理。

第四步、通过拉伸建立调节阀外壳与手柄部分的连接处,草图如下图所示。

接着,运用拉伸建立辅助圆柱体,并与外壳求差,效果如下图所示。

第五步、隐藏掉调节阀外壳,建立弹簧的螺旋线(圈数20,螺距2.5,半径10),然后运用管道建立弹簧,如下图。

第六步、运用球体(直径25)建立弹簧盖,接着运用修剪体将球体下部分修剪掉,见下图。

调节阀最终效果

该文章所属专题:UG实例建模
第五部分、方向盘
第一步、运用拉伸建立方向盘的连接部分,拉伸草图如下图所示。

第二步、接着,对拉伸体进行拔模处理(拔模角为10°)以及抽壳处理(厚度为2,备选厚度为35),效果如下图所示。

运用拉伸建立与弹簧部分的连接,如下图所示。

第三步、运用垫块命令(长30,宽15,高200)奖励方向盘的主体,如下图所示。

第四步、绘制手持部分的草图,如下图所示。

第五步、接着,运用管道命令,外径为8,建立右侧的手持柄。然后,运用镜像体命令建立另一侧的手柄。效果如下图所示。

最终效果如下

该文章所属专题:UG实例建模
1;所有标注为智造资料网zl.fbzzw.cn的内容均为本站所有,版权均属本站所有,若您需要引用、转载,必须注明来源及原文链接即可,如涉及大面积转载,请来信告知,获取《授权协议》。
2;本网站图片,文字之类版权申明,因为网站可以由注册用户自行上传图片或文字,本网站无法鉴别所上传图片或文字的知识版权,如果侵犯,请及时通知我们,本网站将在第一时间及时删除,相关侵权责任均由相应上传用户自行承担。
[complaint:内容投诉]
智造资料网打造智能制造3D图纸下载,在线视频,软件下载,在线问答综合平台 » UG建模之手动叉车(图文教程)

