办公楼设计是建筑设计当中较为普遍的一个类型,如何让所设计的办公楼满足安全、实用、经济、美观的设计目标,是每个设计项目组都需要反复斟酌的。一个好的方案,不仅仅在外观、造型上满足业主的要求,从功能上也应该能满足业主的需求。
在《办公建筑设计规范》当中,办公建筑应根据使用要求,结合基地面积、结构选型等情况按建筑模数选择开间和进深,合理确定建筑平面,并为今后改造和灵活分隔创造条件。因此对于功能相似的坊间,在设计上可以较为集中,这样即使有局部的调整,也不会影响整体方案的改变。特别是高层办公建筑,经验丰富的设计者往往会选择主体框架结构,较大的进深、灵活的开间变化,适合房间的调整。
目前主流的建筑CAD软件都提供了较为完善的办公楼设计工具,如天正建筑、浩辰CAD建筑,通过这些专业的建筑CAD软件,我们可以快速、精确的绘制出想要的设计图。
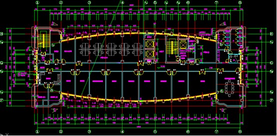
下图是我们采用浩辰CAD建筑 2011绘制的一张典型的高层办公楼图纸,在这个办公楼设计中,南北向采用了一定弧度的玻璃幕墙,在立面效果上会非常突出。由于采用了玻璃幕墙,房间的采光得到了增强,让整个办公、会议场所显得通亮、大气,有效展现出业主的形象。

通过浩辰CAD建筑的房间布局功能,我们将楼梯间、电梯井、卫生间、开水房、设备机房等房间设计在了东北和西北角,这样就把更多的空间让给了南向的房间。东西外墙所临近的房间,都是相对次要的,采用了较小的窗墙比。这种布局一方面让东西与南北的窗墙比可形成鲜明的对比,同时也减小了东西朝向的太阳辐射(特别是解决了建筑物夏季的西晒问题),降低了建筑的能耗。

此外,这个布局还为以后的改造、升级预留了一定的空间,这样一来,即便是未来业主需要进行内部功能改造,也能轻松完成。
从上文可知,这样的布局无论是从外观还是从功能上看都是比较合理的,因此也赢得了业主的认可。
以上是我们提供的一个办公楼设计案例,大家可以加以参考,在此也建议大家在网上下载建筑CAD软件进行实际绘图,以加深印象。
1;所有标注为智造资料网zl.fbzzw.cn的内容均为本站所有,版权均属本站所有,若您需要引用、转载,必须注明来源及原文链接即可,如涉及大面积转载,请来信告知,获取《授权协议》。
2;本网站图片,文字之类版权申明,因为网站可以由注册用户自行上传图片或文字,本网站无法鉴别所上传图片或文字的知识版权,如果侵犯,请及时通知我们,本网站将在第一时间及时删除,相关侵权责任均由相应上传用户自行承担。
[complaint:内容投诉]
智造资料网打造智能制造3D图纸下载,在线视频,软件下载,在线问答综合平台 » 浩辰CAD设计办公楼(图文教程)

