在之前的教程中,我们为大家讲解了如何使用浩辰CAD机械2011软件绘制二级齿轮减速器装配图,而在今天的CAD教程里,我们依然会带来一篇减速器装配图的绘制教程,只不过,我们今天演示的是减速器剖面俯视图的绘制方法。
1、使用浩辰CAD机械2011绘制齿轮剖面图。由于齿轮剖面图形对称,因此我们可以使用浩辰CAD机械软件绘图工具中的【对称划线】命令来绘制(如图1)。

图1
2、以轴为基础,使用浩辰CAD机械软件绘制俯视图减速器箱体外轮廓(如图2)。

图2
3、绘制箱体端盖剖视图并填充图案。其中,我们可以使用浩辰CAD机械软件绘图工具中的【波浪线】命令来绘制剖面曲线,而轴承端盖则可以使用【对称划线】来绘制(如图3)。

图3
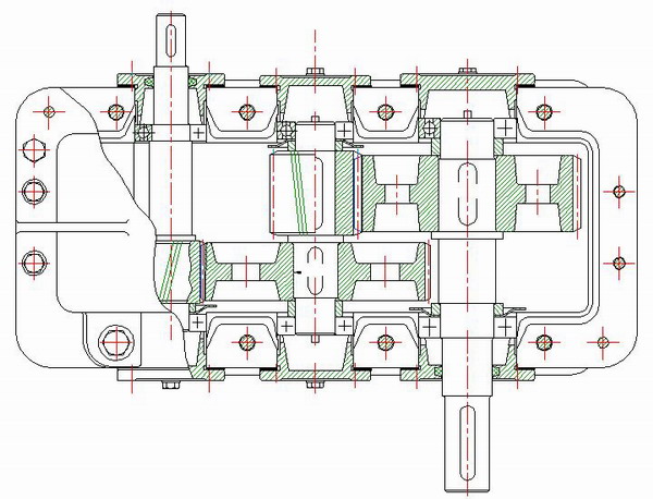
4、绘制螺钉孔和销钉孔:依次点击浩辰CAD机械软件的【构造工具】——【单孔】,在对话框中输入相关数据,快速绘制螺钉孔和销钉孔(如图4)。

图4
这样,我们的二级齿轮减速器俯视图就完成了绘制。
免责声明:
1;所有标注为智造资料网zl.fbzzw.cn的内容均为本站所有,版权均属本站所有,若您需要引用、转载,必须注明来源及原文链接即可,如涉及大面积转载,请来信告知,获取《授权协议》。
2;本网站图片,文字之类版权申明,因为网站可以由注册用户自行上传图片或文字,本网站无法鉴别所上传图片或文字的知识版权,如果侵犯,请及时通知我们,本网站将在第一时间及时删除,相关侵权责任均由相应上传用户自行承担。
[complaint:内容投诉]
智造资料网打造智能制造3D图纸下载,在线视频,软件下载,在线问答综合平台 » 浩辰CAD2011机械_(20)减速器俯视图绘制(图文教程)
1;所有标注为智造资料网zl.fbzzw.cn的内容均为本站所有,版权均属本站所有,若您需要引用、转载,必须注明来源及原文链接即可,如涉及大面积转载,请来信告知,获取《授权协议》。
2;本网站图片,文字之类版权申明,因为网站可以由注册用户自行上传图片或文字,本网站无法鉴别所上传图片或文字的知识版权,如果侵犯,请及时通知我们,本网站将在第一时间及时删除,相关侵权责任均由相应上传用户自行承担。
[complaint:内容投诉]
智造资料网打造智能制造3D图纸下载,在线视频,软件下载,在线问答综合平台 » 浩辰CAD2011机械_(20)减速器俯视图绘制(图文教程)

